Дом из поризованного кирпича Ольха-7 одноэтажный с мансардой 10х10

Получить презентацию проекта

Лучший дом для вашей семьи

Представляем надежный коттедж "Ольха-7" реализованный сотрудниками компании Монолит-домстрой по рекомендациям заказчика. Важное отличие проекта это - удивительное ощущение комфорта, создаваемое красивым камином. Кроме эстетического наслаждения камин выступает в качестве важного нагревательного прибора, который отлично обогреет дом промозглыми осенними вечерами.

Построим вашу мечту

Характеристики проекта

  • Размер дома 10х10 м
  • Число полных этажей 1
  • Высота потолков 3 м
  • Мансарда да
  • Цокольный этаж нет
  • Площадь кухни 12 м2
  • Фундамент Плита
  • Стены Поризованный кирпич
  • Фасад Сайдинг
  • Навес для машины нет
  • Гараж нет
  • Гараж на 2 машины нет
  • Веранда да
  • Балкон да
  • Камин да
  • Баня да
  • Бассейн нет
  • Второй свет нет
  • Барбекю нет
  • Стиль дома Шале Немецкий Фахверк

Описание дома

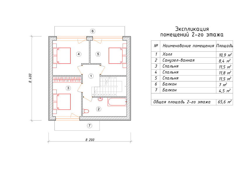
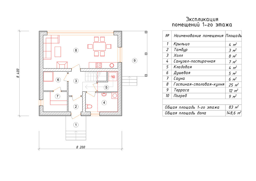
Коттедж в один этаж и комфортное мансардное помещение. Компоновка внутренних помещений характеризуется функциональностью и учитывает размещение инженерных систем, вид из окон и расположение сторон света. Планировочные планы коттеджа включают 4 комфортных спальни и 2 санузла. Полезная площадь здания - 149 м2, размер кухни 12 м2. В данном проекте мы предлагаем использовать тип фундамента - бетонная плита мелкого заложения толщиной 300 мм. Это быстровозводимый и самый экономически выгодный фундамент из всех. Несущие стены коттеджа - поризованный кирпич. В случае необходимости мы можем переделать проект под другой материал несущих конструкций, переработать внутреннее пространство дома и рассмотреть другие условия заказчика.

Построено по этому проекту

г. Подольск
г. Подольск
Подробнее
Площадь дома: 106 м2
Стоимость: 5 786 392 ₽

У вас уже есть проект!

Давайте его обсудим!

Мы составим смету и оптимизируем расходы. Доработаем ваш проект, или создадим новый.
Мы ответим Вам в течение 24 часов
Прикрепить файл

Похожие проекты

Вы недавно смотрели

Дом из газобетона Полтава-4 одноэтажный с мансардой 10х10

Получить презентацию проекта

Дом из крупноформатных Селвин одноэтажный с мансардой 9х9

Получить презентацию проекта
Записаться на встречу в офисе
Прикрепить файл
x
x
x
Позвонить в компанию
или
Заказать обратный звонок
Обратная форма связи
Заявка на бесплатную
видеоконсультацию