Дом из газобетона Радон-12 одноэтажный с мансардой 14х14

Получить презентацию проекта

Лучший дом для вашей семьи

Представляем вашему вниманию дорогой дом "Радон-12" спроектированный в нашей компании по индивидуальному заказу. Важное преимущество данного коттеджа это - широкие светлые окна, которые создают чувство легкости и света. Необходимо сказать, что вопреки ошибочному мнению большие окна приводят к снижению стоимости строительства дома. Современные конструкции делают возможным увеличение площади остекления, не повышая теплопотери дома.

Построим вашу мечту

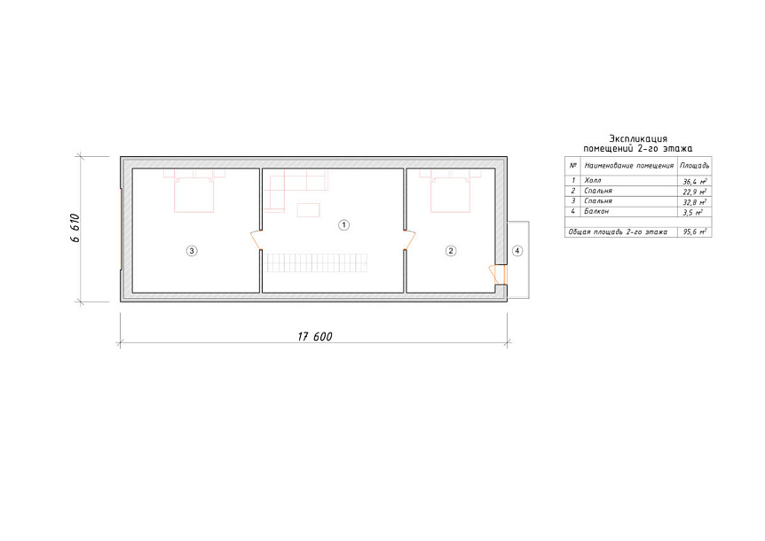
Характеристики проекта

  • Размер дома 14х14 м
  • Число полных этажей 1
  • Высота потолков 3.4 м
  • Мансарда да
  • Цокольный этаж нет
  • Площадь кухни 34 м2
  • Фундамент Финский фундамент
  • Стены Газобетон
  • Фасад Облицовочный кирпич
  • Навес для машины нет
  • Гараж да
  • Гараж на 2 машины нет
  • Веранда нет
  • Балкон да
  • Камин да
  • Баня да
  • Бассейн нет
  • Второй свет нет
  • Барбекю нет
  • Стиль дома Голландский Американский

Описание дома

Дом одноэтажный с функциональным мансардным этажом. Компоновка внутренних помещений отличается продуманностью и учитывает размещение инженерных систем, вид из окон и расположение сторон света. Планировочные решения включают 3 удобных спальни и 3 санузла. Полезная площадь помещений коттеджа - 295 м2, размер кухни 34 м2. В данном коттедже мы предусматриваем вариант фундамента - бетонная мелко-заглубленная лента с утеплением. Этот вариант фундамента идеально подходит если на участке заметный перепад уровня земли, или клиент просит приподнять высотную отметку комнат. По проекту материал несущих стен коттеджа - газобетон. В случае необходимости мы можем изменить проект под другой материал стен, уточнить планировки помещений и учесть другие условия заказчика.

У вас уже есть проект!

Давайте его обсудим!

Мы составим смету и оптимизируем расходы. Доработаем ваш проект, или создадим новый.
Мы ответим Вам в течение 24 часов
Прикрепить файл

Похожие проекты

Вы недавно смотрели

Дом из газобетона Казбек одноэтажный с мансардой 14х14

Получить презентацию проекта

Дом из газобетона Озерки одноэтажный с мансардой 13х13

Получить презентацию проекта
Записаться на встречу в офисе
Прикрепить файл
x
x
x
Позвонить в компанию
или
Заказать обратный звонок
Обратная форма связи
Заявка на бесплатную
видеоконсультацию