Дом из газобетона Крит одноэтажный 15х15

Получить презентацию проекта

Лучший дом для вашей семьи

Представляем вашему вниманию проект загородного дома наиболее популярного ценового диапазона "Крит" реализованный нашими сотрудниками по эскизам заказчика. Отличительная черта данного коттеджа - просторный теплый гараж на два а/м. Это хороший выбор для многодетной семьи, которая владеет двумя автомобилями. Просторное пространство позволит организовать мойку для вашей машины. В таком гараже можно с легкостью расположить складские стеллажи и небольшую мастерскую, найти свободное место под садовый инвентарь и инструмент.

Построим вашу мечту

Характеристики проекта

  • Размер дома 15х15 м
  • Число полных этажей 1
  • Высота потолков 3 м
  • Мансарда нет
  • Цокольный этаж нет
  • Площадь кухни 19 м2
  • Фундамент Плита
  • Стены Газобетон
  • Фасад Комбинированный фасад
  • Навес для машины нет
  • Гараж нет
  • Гараж на 2 машины да
  • Веранда да
  • Балкон нет
  • Камин нет
  • Баня нет
  • Бассейн нет
  • Второй свет нет
  • Барбекю нет
  • Стиль дома Современный Хай-тек Модерн

Описание дома

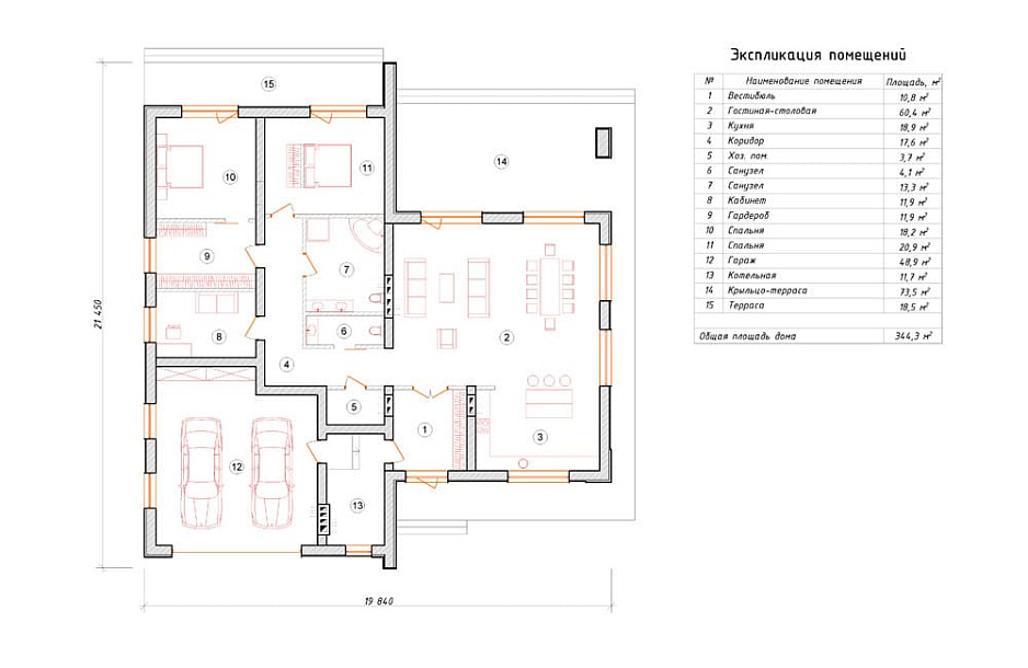
Коттедж одноэтажный с плоской кровлей из ПВХ мембраны. Компоновка комнат отличается разумностью и принимает во внимание размещение инженерных систем, вид из окон и расположение сторон света. Планировка включает 2 уютных спальни и 2 санузла. Полезная площадь помещений здания составляет 344 м2, размер кухни 19 м2. В этом коттедже мы предлагаем применить вариант фундамента - бетонная армированная плита толщиной 250 мм. Это простой и самый экономически выгодный вариант фундамент из всех. Материал стен коттеджа - газобетон. По вашему решению наши конструкторы поменяют этот проект под другой материал несущих конструкций, архитекторы актуализируют расположение комнат и примут во внимание другие пожелания клиента.

У вас уже есть проект!

Давайте его обсудим!

Мы составим смету и оптимизируем расходы. Доработаем ваш проект, или создадим новый.
Мы ответим Вам в течение 24 часов
Прикрепить файл

Похожие проекты

Вы недавно смотрели

Дом из щелевого кирпича Элефант 2 одноэтажный 13х13

Получить презентацию проекта

Дом из пеноблоков Элефант 7 одноэтажный 14х14

Получить презентацию проекта
Записаться на встречу в офисе
Прикрепить файл
x
x
x
Позвонить в компанию
или
Заказать обратный звонок
Обратная форма связи
Заявка на бесплатную
видеоконсультацию