Дом из газобетона Радон-9 одноэтажный с мансардой 13х13

Получить презентацию проекта

Лучший дом для вашей семьи

Представляем проект коттеджа наиболее популярного ценового сегмента "Радон-9" созданный нашими архитекторами по индивидуальному заказу. Индивидуальность представленного дома это - ощущение торжественности в интерьерах дома, которое появляется благодаря панорамному остеклению. Современные конструкции позволяют увеличивать площадь остекления, не уменьшая энергоэффективность дома.

Построим вашу мечту

Характеристики проекта

  • Размер дома 13х13 м
  • Число полных этажей 1
  • Высота потолков 3.2 м
  • Мансарда да
  • Цокольный этаж нет
  • Площадь кухни 24 м2
  • Фундамент УШП
  • Стены Газобетон
  • Фасад Облицовочный кирпич
  • Навес для машины нет
  • Гараж нет
  • Гараж на 2 машины нет
  • Веранда да
  • Балкон да
  • Камин да
  • Баня да
  • Бассейн нет
  • Второй свет нет
  • Барбекю да
  • Стиль дома Русский

Описание дома

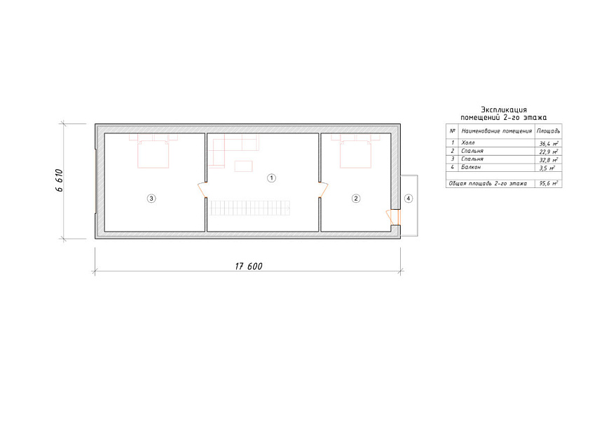
Коттедж в один полный этаж плюс теплый мансардный этаж. Планировка внутреннего пространства характеризуется разумностью и принимает во внимание размещение инженерных систем, вид из окон и расположение сторон света. Планировка дома включает 3 удобных спальни и 3 санузла. Планировочная площадь помещений дома - 259 м2, размер кухонного пространства 24 м2. В этом проекте мы предусматриваем вариант фундамента - утепленная шведская плита. Это самый теплый фундамент, оптимально подходящий для коттеджного строительства в нашей климатической зоне. Несущие стены дома - газобетон. По вашему решению мы можем изменить проект под другой материал стен, адаптировать расположение помещений коттеджа и учесть любые другие требования заказчика.

У вас уже есть проект!

Давайте его обсудим!

Мы составим смету и оптимизируем расходы. Доработаем ваш проект, или создадим новый.
Мы ответим Вам в течение 24 часов
Прикрепить файл

Похожие проекты

Вы недавно смотрели

Дом из бетона Казбек-2 одноэтажный с мансардой 14х14

Получить презентацию проекта

Дом из керамического кирпича Павловск-2 одноэтажный с мансардой 14х14

Получить презентацию проекта
Записаться на встречу в офисе
Прикрепить файл
x
x
x
Позвонить в компанию
или
Заказать обратный звонок
Обратная форма связи
Заявка на бесплатную
видеоконсультацию