Дом Лиман одноэтажный с мансардой 12х12

Получить презентацию проекта

Лучший дом для вашей семьи

Представляем проект частного дома недорогого сегмента "Лиман" разработанный сотрудниками компании Монолит-домстрой по индивидуальному заказу. Отличительная черта дома это - чувство теплоты, создаваемое функциональным и красивым камином. Кроме эстетического удовольствия камин является практичным нагревательным прибором, который хорошо согреет дом зимой.

Построим вашу мечту

Характеристики проекта

  • Размер дома 12х12 м
  • Число полных этажей 1
  • Высота потолков 3 м
  • Мансарда да
  • Цокольный этаж нет
  • Площадь кухни 19 м2
  • Фундамент УШП
  • Стены Ячеистый блок
  • Фасад Комбинированный фасад
  • Навес для машины нет
  • Гараж да
  • Гараж на 2 машины нет
  • Веранда нет
  • Балкон нет
  • Камин да
  • Баня нет
  • Бассейн нет
  • Второй свет нет
  • Барбекю нет
  • Стиль дома Английский Европейский

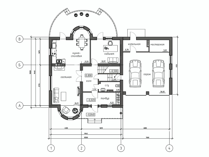
Описание дома

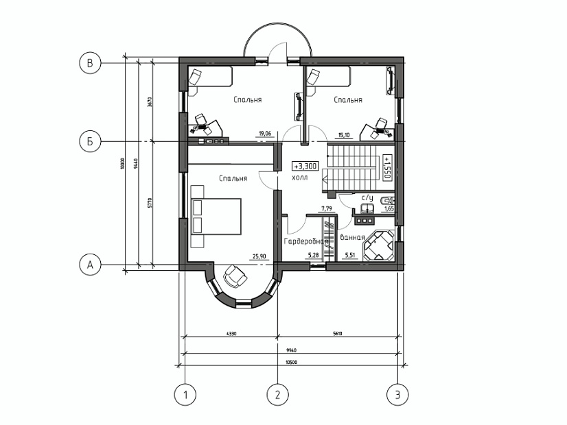
Проект в один этаж и функциональное мансардное помещение. Планировка помещений выделятся функциональностью и принимает во внимание размещение инженерных систем, вид из окон и расположение сторон света. Планировочные планы здания предусматривают 3 удобных спальни и 2 санузла. Планировочная площадь помещений дома составляет 226 м2, площадь кухни 19 м2. В данном коттедже мы советуем использовать тип фундамента - УШП фундамент. Это наиболее энергоэффективный фундамент, оптимально подходящий для коттеджного строительства в нашей климатической зоне. Материал несущих стен по проекту - крупноформатные блоки. По вашему решению мы можем переделать этот проект под другой материал, переработать расположение комнат дома и принять по внимание другие ваши условия.

У вас уже есть проект!

Давайте его обсудим!

Мы составим смету и оптимизируем расходы. Доработаем ваш проект, или создадим новый.
Мы ответим Вам в течение 24 часов
Прикрепить файл

Похожие проекты

Дом из газобетона Бореал одноэтажный с мансардой 15х15

Получить презентацию проекта

Дом из пеноблоков Бореал 2 одноэтажный с мансардой 15х15

Получить презентацию проекта
Записаться на встречу в офисе
Прикрепить файл
x
x
x
Позвонить в компанию
или
Заказать обратный звонок
Обратная форма связи
Заявка на бесплатную
видеоконсультацию