Дом из керамических блоков Барин одноэтажный с мансардой 15х15

Получить презентацию проекта

Лучший дом для вашей семьи

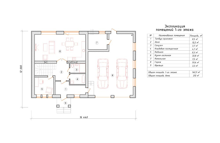
Представляем проект загородного дома премиального сегмента "Барин" спроектированный нашими сотрудниками по результатам встречи с заказчиком в нашем офисе. Самобытность данного коттеджа это - просторный крытый гараж на два автомобиля. Это разумный выбор для многодетной семьи, которая владеет двумя автомобилями. Большой гараж позволит организовать механическую мойку для автомобилей. Такой гараж позволит удобно поместить складские стеллажи и небольшую мастерскую, найти свободное место для инструмента и садовой техники.

Построим вашу мечту

Характеристики проекта

  • Размер дома 15х15 м
  • Число полных этажей 1
  • Высота потолков 3.2 м
  • Мансарда да
  • Цокольный этаж нет
  • Площадь кухни 18 м2
  • Фундамент Финский фундамент
  • Стены Керамические блоки
  • Фасад Комбинированный фасад
  • Навес для машины нет
  • Гараж нет
  • Гараж на 2 машины да
  • Веранда нет
  • Балкон нет
  • Камин нет
  • Баня нет
  • Бассейн нет
  • Второй свет нет
  • Барбекю нет
  • Стиль дома Современный Немецкий Европейский

Описание дома

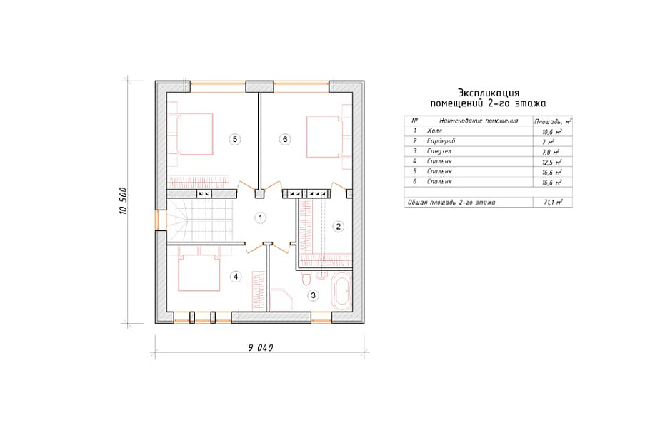
Дом в один полный этаж и удобный мансардный этаж. Планировка пространства дома отличается продуманностью и учитывает размещение инженерных систем, вид из окон и расположение сторон света. Планировочные планы предусматривают 3 уютных спальни и 2 санузла. Размер всех помещений коттеджа - 212 м2, размер кухни 18 м2. В данном доме мы советуем применить фундамент - монолитная мелкого заложения утепленная лента. Этот фундамент идеально подходит, когда на участке большой перепад уровня земли, или клиент требует приподнять уровень помещений первого этажа выше над землей. Материал несущих стен данного дома - керамические блоки. В случае необходимости наши конструкторы поменяют этот проект под другой материал несущих конструкций, архитекторы детализируют внутреннее пространство и примут во внимание другие требования заказчика.

У вас уже есть проект!

Давайте его обсудим!

Мы составим смету и оптимизируем расходы. Доработаем ваш проект, или создадим новый.
Мы ответим Вам в течение 24 часов
Прикрепить файл

Похожие проекты

Дом из керамзитобетона Губино одноэтажный с мансардой 12х12

Получить презентацию проекта

Дом из газосиликата Клэр одноэтажный с мансардой 14х14

Получить презентацию проекта
Записаться на встречу в офисе
Прикрепить файл
x
x
x
Позвонить в компанию
или
Заказать обратный звонок
Обратная форма связи
Заявка на бесплатную
видеоконсультацию