Дом из оцилиндрованного бревна Хронос одноэтажный с мансардой 15х15

Получить презентацию проекта

Лучший дом для вашей семьи

Представляем роскошный коттедж "Хронос" разработанный нашими специалистами по рекомендациям заказчика. Конкурентным преимуществом этого дома является комфортная паровая баня на дровах. Баня подарит долголетие, порадует ароматом березового веника и вкусным квасом. С древности считается, что баня обеспечит хорошее здоровье и долголетие.

Построим вашу мечту

Характеристики проекта

  • Размер дома 15х15 м
  • Число полных этажей 1
  • Высота потолков 3 м
  • Мансарда да
  • Цокольный этаж нет
  • Площадь кухни 14 м2
  • Фундамент Свайный
  • Стены Оцилиндрованное
  • Фасад Штукатурка
  • Навес для машины нет
  • Гараж нет
  • Гараж на 2 машины да
  • Веранда нет
  • Балкон да
  • Камин нет
  • Баня да
  • Бассейн нет
  • Второй свет нет
  • Барбекю нет
  • Стиль дома Шале Русский

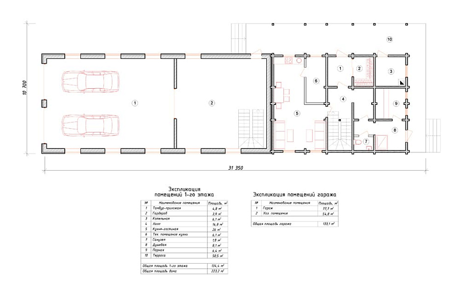
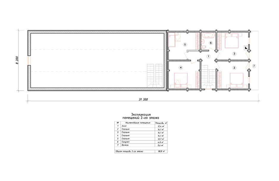
Описание дома

Проектом предусматривается одноэтажное здание и жилой мансардный этаж. Компоновка внутреннего пространства отличается продуманностью и учитывает размещение инженерных систем, вид из окон и расположение сторон света. Планировочные планы включают 4 комфортных спальни и 2 санузла. Размер всех помещений здания - 223 м2, площадь кухонного пространства 14 м2. Для этого коттеджа мы предлагаем использовать тип фундамента - бетонная мелко-заглубленная лента с утеплением. Этот вариант фундамента идеально подходит, когда в пятне застройки большой перепад уровня земли, или заказчик планирует поднять выше уровень комнат первого этажа. Стены по проекту - оцилиндрованное бревно. В случае необходимости мы можем изменить этот проект под другой материал стен, переработать планировки этажей и принять по внимание другие пожелания заказчика.

У вас уже есть проект!

Давайте его обсудим!

Мы составим смету и оптимизируем расходы. Доработаем ваш проект, или создадим новый.
Мы ответим Вам в течение 24 часов
Прикрепить файл

Похожие проекты

Вы недавно смотрели

Дом из газобетона Болдино одноэтажный с мансардой 11х11

Получить презентацию проекта

Дом из газобетона Шарапово-2 одноэтажный с мансардой 11х11

Получить презентацию проекта
Записаться на встречу в офисе
Прикрепить файл
x
x
x
Позвонить в компанию
или
Заказать обратный звонок
Обратная форма связи
Заявка на бесплатную
видеоконсультацию