Дом из теплоблоков Сказка одноэтажный с мансардой 10x12

Получить презентацию проекта

Лучший дом для вашей семьи

Представляем вашему вниманию проект загородного дома среднего ценового сегмента "Сказка" реализованный нашими сотрудниками по результатам встречи с заказчиком в нашем офисе. Этот дивный дом-сказка для многих является мечтой детства! Выступающая башня с остроконечной крышей добавят неповторимости в дом вашей мечты. Без всякого сомнения, этот дом станет украшением вашей жизни и притягательным местом для ваших детей и друзей!

Построим вашу мечту

Характеристики проекта

  • Размер дома 10x12 м
  • Число полных этажей 1
  • Высота потолков 3 м
  • Мансарда да
  • Цокольный этаж нет
  • Площадь кухни 20 м2
  • Фундамент УШП
  • Стены Теплоблоки
  • Фасад Штукатурка
  • Навес для машины нет
  • Гараж нет
  • Гараж на 2 машины нет
  • Веранда нет
  • Балкон да
  • Камин нет
  • Баня нет
  • Бассейн нет
  • Второй свет нет
  • Барбекю нет
  • Стиль дома Английский Европейский

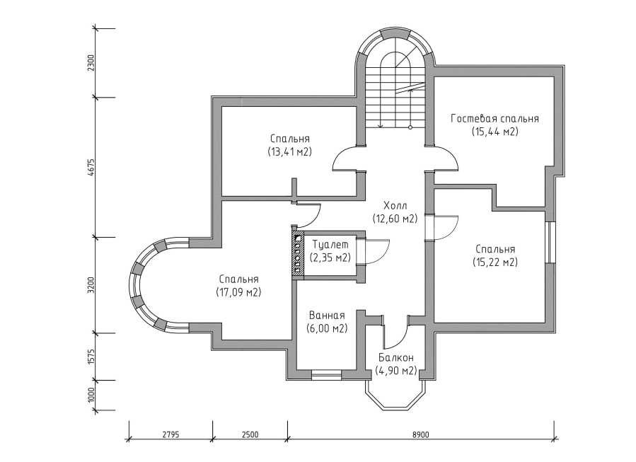
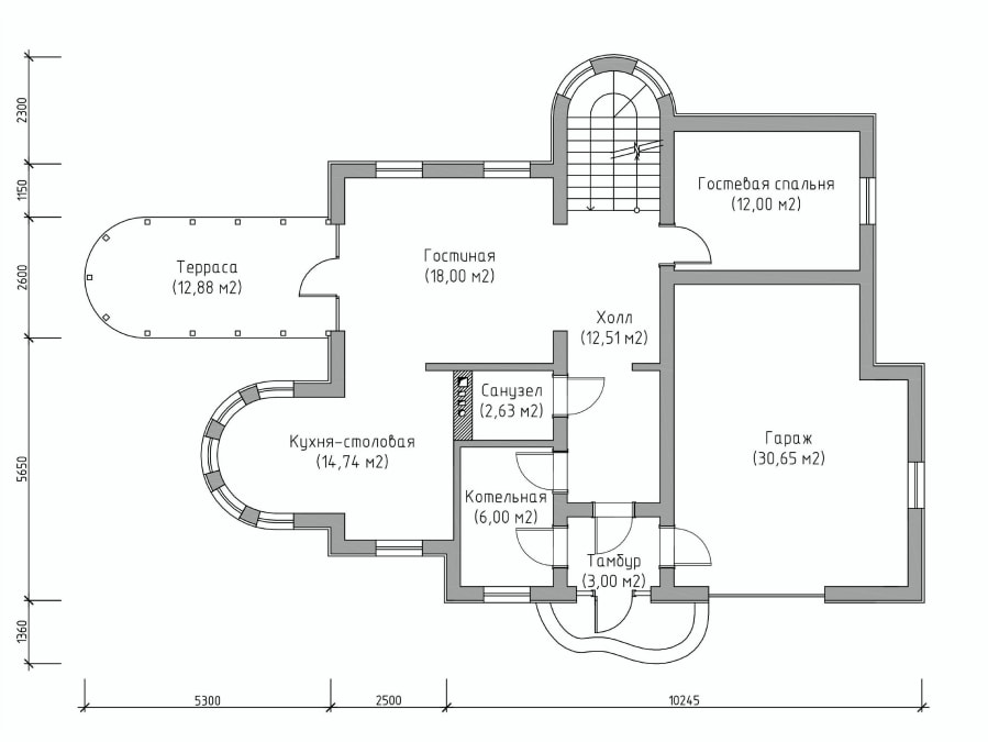
Описание дома

Дом в один полный этаж и удобная мансарда. Планировка внутренних помещений отличается разумностью и учитывает размещение инженерных систем, вид из окон и расположение сторон света. Проектом предусматривается 5 комфортных спален и 3 санузла. Полезная площадь помещений здания составляет 200 м2, размер кухни 20 м2. В этом коттедже мы предлагаем применить вариант фундамента - УШП фундамент. Это самый современный фундамент, идеально подходящий для индивидуального строительства в нашей климатической зоне. Материал стен данного дома - теплоблоки. По решению заказчика наши конструкторы поменяют данный проект под другой материал, архитекторы актуализируют внутреннее пространство и учтут другие пожелания заказчика.

У вас уже есть проект!

Давайте его обсудим!

Мы составим смету и оптимизируем расходы. Доработаем ваш проект, или создадим новый.
Мы ответим Вам в течение 24 часов
Прикрепить файл

Похожие проекты

Вы недавно смотрели

Дом из крупноформатных Янтарь одноэтажный с мансардой 10х10

Получить презентацию проекта

Дом из монолитного полистиролбетона Полтава-3 одноэтажный с мансардой 10х10

Получить презентацию проекта
Записаться на встречу в офисе
Прикрепить файл
x
x
x
Позвонить в компанию
или
Заказать обратный звонок
Обратная форма связи
Заявка на бесплатную
видеоконсультацию