Дом из керамических блоков Шерон одноэтажный с мансардой 12х12

Получить презентацию проекта

Лучший дом для вашей семьи

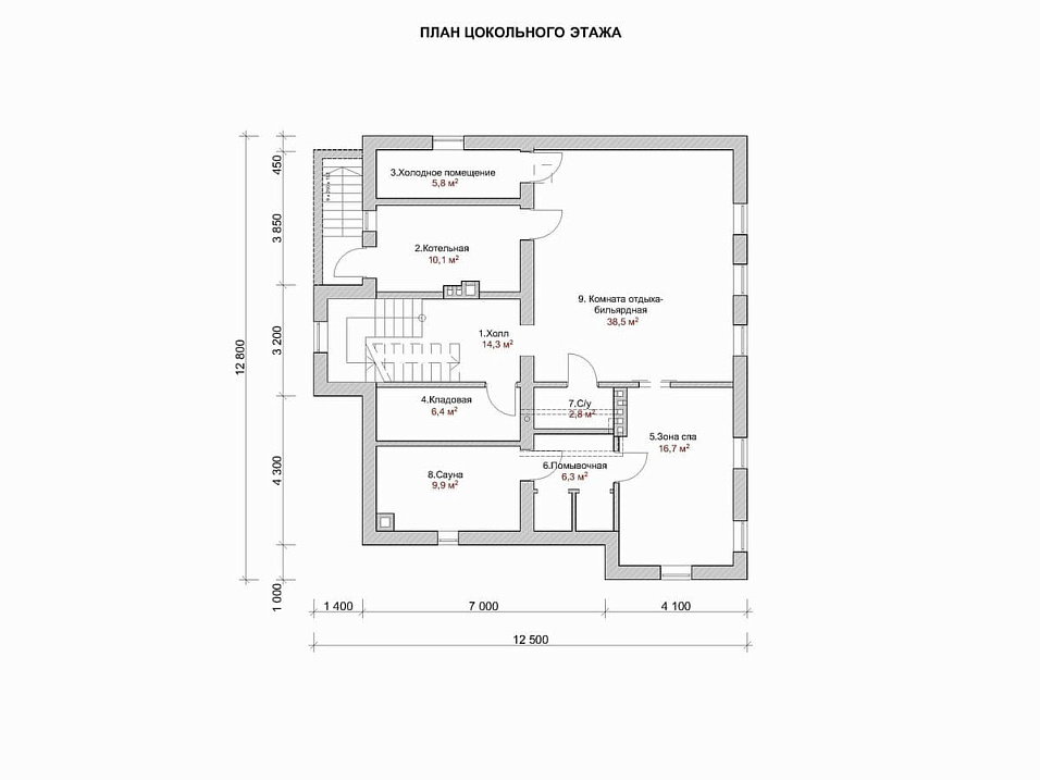
Представляем вашему вниманию проект частного дома недорогого сегмента "Шерон" спроектированный в нашей компании по результатам встречи с заказчиком в нашем офисе. Важным отличием дома является практичный подвальный этаж, где свободно разместятся тренажёрный зал, бильярдная и кладовая. Помимо этого, подвальный этаж позволит уменьшить площадь застройки и поднять помещения первого этажа выше над землей. Это идеальный вариант для участков с большим перепадом уровня земли.

Построим вашу мечту

Характеристики проекта

  • Размер дома 12х12 м
  • Число полных этажей 1
  • Высота потолков 3 м
  • Мансарда да
  • Цокольный этаж да
  • Площадь кухни 11 м2
  • Фундамент Плита
  • Стены Керамические блоки
  • Фасад Штукатурка
  • Навес для машины нет
  • Гараж нет
  • Гараж на 2 машины нет
  • Веранда нет
  • Балкон да
  • Камин да
  • Баня да
  • Бассейн нет
  • Второй свет нет
  • Барбекю нет
  • Стиль дома Американский Европейский

Описание дома

Дом одноэтажный и теплое мансардное помещение. Планировка внутреннего пространства выделятся функциональностью и учитывает размещение инженерных систем, вид из окон и расположение сторон света. Планировка включает 4 комфортных спальни и 3 санузла. Планировочная площадь всех помещений дома составляет 331 м2, размер кухонного пространства 11 м2. В данном случае мы предлагаем применить тип фундамента - монолитная армированная плита с утеплением толщиной 300 мм. Это простой и наиболее экономически выгодный тип фундамента из всех. По проекту материал несущих конструкций - керамические блоки. В случае необходимости наши конструкторы изменят данный проект под другой материал стен, архитекторы актуализируют планировки этажей и примут во внимание другие ваши идеи.

У вас уже есть проект!

Давайте его обсудим!

Мы составим смету и оптимизируем расходы. Доработаем ваш проект, или создадим новый.
Мы ответим Вам в течение 24 часов
Прикрепить файл

Похожие проекты

Вы недавно смотрели

Дом из керамического кирпича Шерон 4 одноэтажный с мансардой 9x12

Получить презентацию проекта

Дом из газосиликата Шейк 4 одноэтажный с мансардой 15х15

Получить презентацию проекта
Записаться на встречу в офисе
Прикрепить файл
x
x
x
Позвонить в компанию
или
Заказать обратный звонок
Обратная форма связи
Заявка на бесплатную
видеоконсультацию