Дом из полистеролбетона Селигер 3 одноэтажный с мансардой 9x12

Получить презентацию проекта

Построим вашу мечту

Характеристики проекта

  • Размер дома 9x12 м
  • Число полных этажей 1
  • Высота потолков 3 м
  • Мансарда да
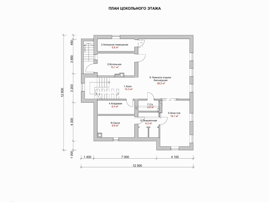
  • Цокольный этаж да
  • Площадь кухни 11 м2
  • Фундамент Финский фундамент
  • Стены Полистиролбетон
  • Фасад Штукатурка
  • Навес для машины нет
  • Гараж нет
  • Гараж на 2 машины нет
  • Веранда да
  • Балкон да
  • Камин нет
  • Баня нет
  • Бассейн нет
  • Второй свет нет
  • Барбекю нет
  • Стиль дома Шале Украинский Лофт Европейский Французский

У вас уже есть проект!

Давайте его обсудим!

Мы составим смету и оптимизируем расходы. Доработаем ваш проект, или создадим новый.
Мы ответим Вам в течение 24 часов
Прикрепить файл

Похожие проекты

Вы недавно смотрели

Дом из полнотелого кирпича Шерон 2 одноэтажный с мансардой 13х13

Получить презентацию проекта

Дом из газобетона Шейк 3 одноэтажный с мансардой 13х13

Получить презентацию проекта
Записаться на встречу в офисе
Прикрепить файл
x
x
x
Позвонить в компанию
или
Заказать обратный звонок
Обратная форма связи
Заявка на бесплатную
видеоконсультацию