Дом из полнотелого кирпича Шерон 5 одноэтажный с мансардой 10х10

Получить презентацию проекта

Построим вашу мечту

Характеристики проекта

  • Размер дома 10х10 м
  • Число полных этажей 1
  • Высота потолков 3 м
  • Мансарда да
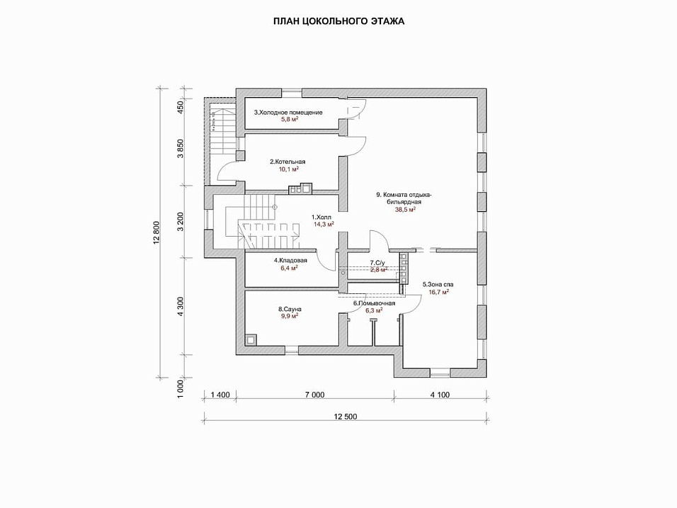
  • Цокольный этаж да
  • Площадь кухни 11 м2
  • Фундамент Ленточный
  • Стены Полнотелый кирпич
  • Фасад Облицовочный кирпич
  • Навес для машины нет
  • Гараж нет
  • Гараж на 2 машины нет
  • Веранда да
  • Балкон да
  • Камин да
  • Баня да
  • Бассейн нет
  • Второй свет да
  • Барбекю нет
  • Стиль дома Голландский Английский Немецкий Русский

У вас уже есть проект!

Давайте его обсудим!

Мы составим смету и оптимизируем расходы. Доработаем ваш проект, или создадим новый.
Мы ответим Вам в течение 24 часов
Прикрепить файл

Похожие проекты

Вы недавно смотрели

Дом из пеноблоков Селигер одноэтажный с мансардой 12х12

Получить презентацию проекта

Дом из керамзитобетона Селигер 1 одноэтажный с мансардой 11х11

Получить презентацию проекта
Записаться на встречу в офисе
Прикрепить файл
x
x
x
Позвонить в компанию
или
Заказать обратный звонок
Обратная форма связи
Заявка на бесплатную
видеоконсультацию