Дом из пеноблоков Марьино одноэтажный с мансардой 10x12

Получить презентацию проекта

Лучший дом для вашей семьи

Представляем дом среднего ценового сегмента "Марьино" реализованный нашими конструкторами по эскизам заказчика. В этом проекте прекрасно всё: просторная гостиная, где может собраться вся дружная семья, камин, дарящий праздничное настроение, уют и тепло, и конечно же, выдающийся эркер, что придаст эстетики в интерьер, сделает дом светлее и красочнее. Всё это делает дом достойным воплощением вашей мечты!

Построим вашу мечту

Характеристики проекта

  • Размер дома 10x12 м
  • Число полных этажей 1
  • Высота потолков 3 м
  • Мансарда да
  • Цокольный этаж нет
  • Площадь кухни 27 м2
  • Фундамент УШП
  • Стены Пеноблоки
  • Фасад Облицовочный кирпич
  • Навес для машины нет
  • Гараж нет
  • Гараж на 2 машины нет
  • Веранда нет
  • Балкон нет
  • Камин нет
  • Баня нет
  • Бассейн нет
  • Второй свет нет
  • Барбекю нет
  • Стиль дома Европейский

Описание дома

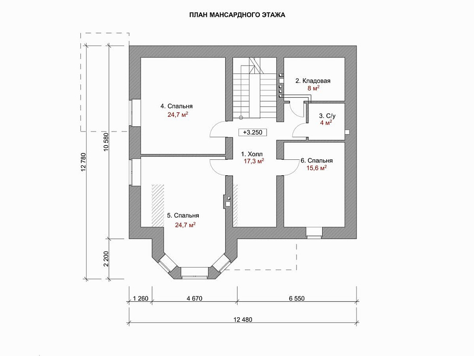
Коттедж одноэтажный с жилым мансардным этажом. Планировка пространства дома отличается продуманностью и принимает во внимание размещение инженерных систем, вид из окон и расположение сторон света. Планировочные решения дома предусматривают 3 уютных спальни и 2 санузла. Планировочная площадь всех помещений дома составляет 207 м2, площадь кухонного пространства 27 м2. В данном случае мы рекомендуем применить фундамент - утепленный шведский фундамент. Это наиболее энергоэффективный фундамент, идеально подходящий для коттеджного строительства в нашей климатической зоне. Материал несущих конструкций данного коттеджа - пеноблоки. По вашему решению наши конструкторы поменяют проект под другой материал стен, архитекторы детализируют планировки этажей и рассмотрят любые другие требования клиента.

У вас уже есть проект!

Давайте его обсудим!

Мы составим смету и оптимизируем расходы. Доработаем ваш проект, или создадим новый.
Мы ответим Вам в течение 24 часов
Прикрепить файл

Похожие проекты

Вы недавно смотрели

Дом из теплоблоков Сказка одноэтажный с мансардой 10x12

Получить презентацию проекта

Дом из газобетона Лубава одноэтажный с мансардой 15х15

Получить презентацию проекта
Записаться на встречу в офисе
Прикрепить файл
x
x
x
Позвонить в компанию
или
Заказать обратный звонок
Обратная форма связи
Заявка на бесплатную
видеоконсультацию