Дом из полнотелого кирпича Шейк 1 одноэтажный с мансардой 14х14

Получить презентацию проекта

Построим вашу мечту

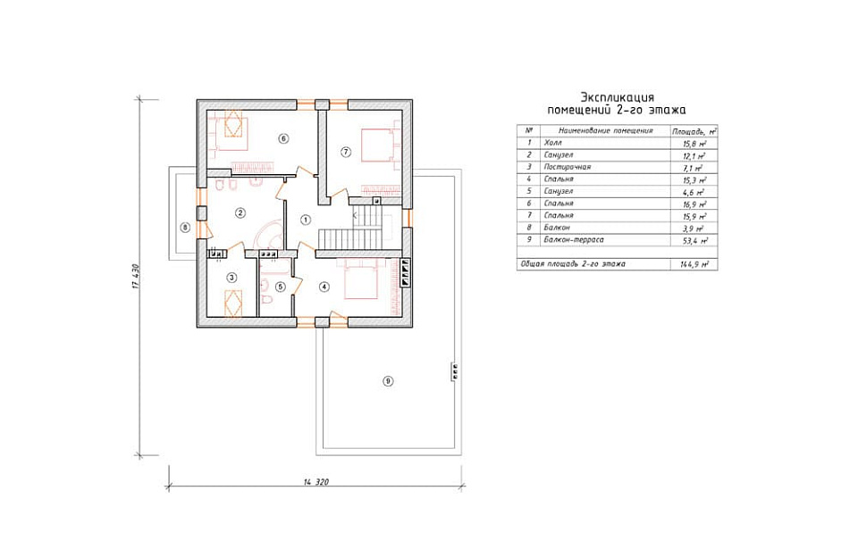
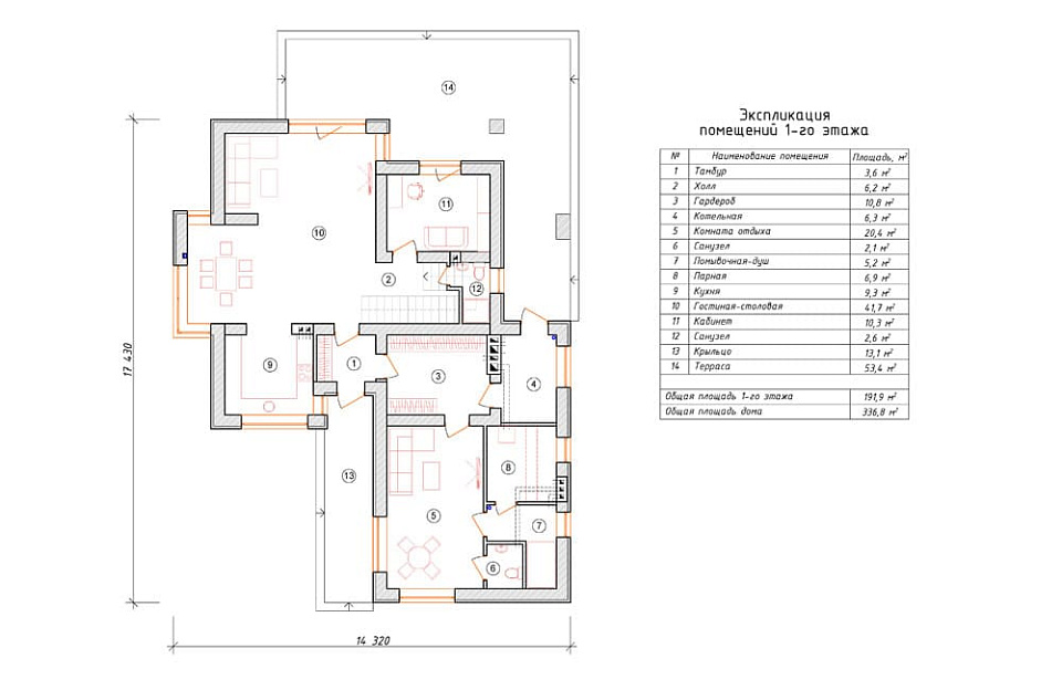
Характеристики проекта

  • Размер дома 14х14 м
  • Число полных этажей 1
  • Высота потолков 3 м
  • Мансарда да
  • Цокольный этаж нет
  • Площадь кухни 9 м2
  • Фундамент Свайный
  • Стены Полнотелый кирпич
  • Фасад Комбинированный фасад
  • Навес для машины нет
  • Гараж нет
  • Гараж на 2 машины нет
  • Веранда нет
  • Балкон да
  • Камин нет
  • Баня да
  • Бассейн нет
  • Второй свет нет
  • Барбекю нет
  • Стиль дома Современный Хай-тек Модерн Минимализм Лофт Европейский Прованс Итальянский Французский

У вас уже есть проект!

Давайте его обсудим!

Мы составим смету и оптимизируем расходы. Доработаем ваш проект, или создадим новый.
Мы ответим Вам в течение 24 часов
Прикрепить файл

Похожие проекты

Вы недавно смотрели

Дом из керамзитобетона Селигер 1 одноэтажный с мансардой 11х11

Получить презентацию проекта

Дом из крупноформатных Селигер 4 одноэтажный с мансардой 10х10

Получить презентацию проекта
Записаться на встречу в офисе
Прикрепить файл
x
x
x
Позвонить в компанию
или
Заказать обратный звонок
Обратная форма связи
Заявка на бесплатную
видеоконсультацию