Дом из пеноблоков Элефант 7 одноэтажный 14х14

Получить презентацию проекта

Построим вашу мечту

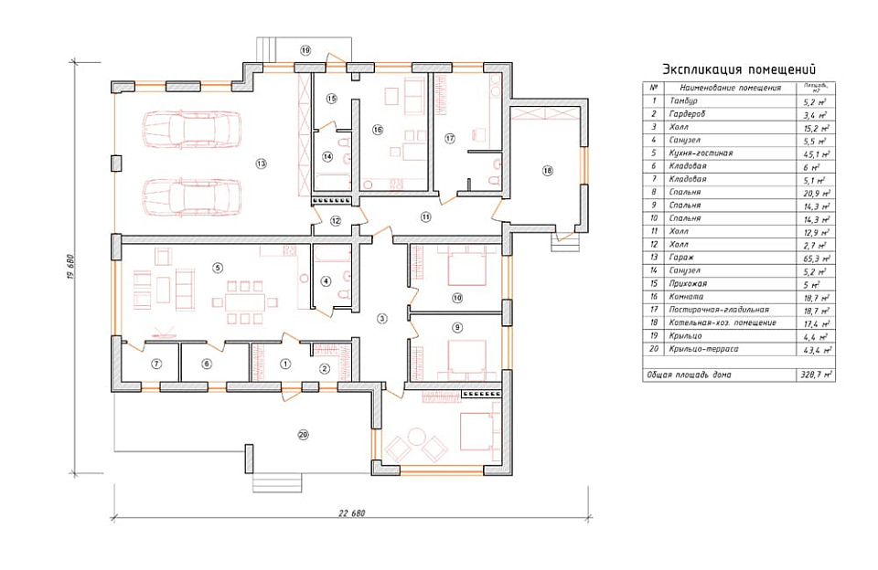
Характеристики проекта

  • Размер дома 14х14 м
  • Число полных этажей 1
  • Высота потолков 3.4 м
  • Мансарда нет
  • Цокольный этаж нет
  • Площадь кухни 20 м2
  • Фундамент Ленточный
  • Стены Пеноблоки
  • Фасад Штукатурка
  • Навес для машины да
  • Гараж да
  • Гараж на 2 машины нет
  • Веранда нет
  • Балкон нет
  • Камин нет
  • Баня да
  • Бассейн нет
  • Второй свет да
  • Барбекю нет
  • Стиль дома Современный Шале Модерн Минимализм Лофт Европейский Прованс Итальянский Французский

У вас уже есть проект!

Давайте его обсудим!

Мы составим смету и оптимизируем расходы. Доработаем ваш проект, или создадим новый.
Мы ответим Вам в течение 24 часов
Прикрепить файл

Похожие проекты

Вы недавно смотрели

Дом из щелевого кирпича Элефант 2 одноэтажный 13х13

Получить презентацию проекта

Дом из поризованного кирпича Элефант 6 одноэтажный 13х13

Получить презентацию проекта
Записаться на встречу в офисе
Прикрепить файл
x
x
x
Позвонить в компанию
или
Заказать обратный звонок
Обратная форма связи
Заявка на бесплатную
видеоконсультацию