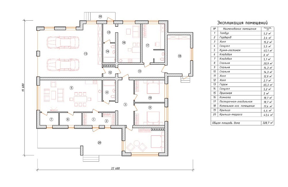
Дом из керамических блоков Элефант 5 одноэтажный 12х12

Получить презентацию проекта

Построим вашу мечту

Характеристики проекта

  • Размер дома 12х12 м
  • Число полных этажей 1
  • Высота потолков 3.4 м
  • Мансарда нет
  • Цокольный этаж нет
  • Площадь кухни 20 м2
  • Фундамент Финский фундамент
  • Стены Керамические блоки
  • Фасад Штукатурка
  • Навес для машины да
  • Гараж да
  • Гараж на 2 машины да
  • Веранда да
  • Балкон нет
  • Камин нет
  • Баня нет
  • Бассейн нет
  • Второй свет да
  • Барбекю да
  • Стиль дома Современный Шале Модерн Минимализм Лофт Европейский Прованс Итальянский Французский

У вас уже есть проект!

Давайте его обсудим!

Мы составим смету и оптимизируем расходы. Доработаем ваш проект, или создадим новый.
Мы ответим Вам в течение 24 часов
Прикрепить файл

Похожие проекты

Вы недавно смотрели

Дом Плато 2 одноэтажный 15х15

Получить презентацию проекта

Дом из полнотелого кирпича Элефант 1 одноэтажный 15х15

Получить презентацию проекта
Записаться на встречу в офисе
Прикрепить файл
x
x
x
Позвонить в компанию
или
Заказать обратный звонок
Обратная форма связи
Заявка на бесплатную
видеоконсультацию