Дом из крупноформатных Марьино 4 одноэтажный с мансардой 14х14

Получить презентацию проекта

Построим вашу мечту

Характеристики проекта

  • Размер дома 14х14 м
  • Число полных этажей 1
  • Высота потолков 3 м
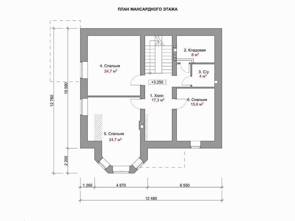
  • Мансарда да
  • Цокольный этаж нет
  • Площадь кухни 27 м2
  • Фундамент Ленточный
  • Стены Крупноформатные блоки
  • Фасад Штукатурка
  • Навес для машины нет
  • Гараж нет
  • Гараж на 2 машины нет
  • Веранда да
  • Балкон нет
  • Камин нет
  • Баня нет
  • Бассейн нет
  • Второй свет нет
  • Барбекю да
  • Стиль дома Современный Модерн Голландский Английский Немецкий Скандинавский

У вас уже есть проект!

Давайте его обсудим!

Мы составим смету и оптимизируем расходы. Доработаем ваш проект, или создадим новый.
Мы ответим Вам в течение 24 часов
Прикрепить файл

Похожие проекты

Вы недавно смотрели

Дом из керамзитобетона Алабама одноэтажный с мансардой 9x12

Получить презентацию проекта

Дом из газобетона Лубава одноэтажный с мансардой 15х15

Получить презентацию проекта
Записаться на встречу в офисе
Прикрепить файл
x
x
x
Позвонить в компанию
или
Заказать обратный звонок
Обратная форма связи
Заявка на бесплатную
видеоконсультацию