Дом из пеноблоков Богарт-3 двухэтажный 12х12

Получить презентацию проекта

Построим вашу мечту

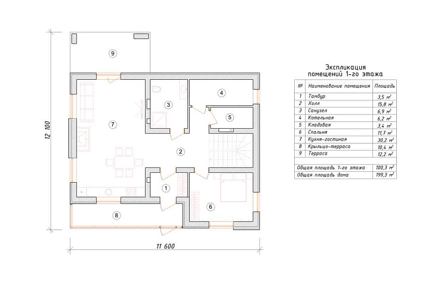
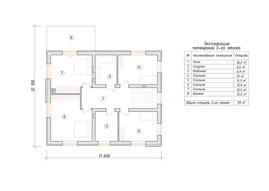
Характеристики проекта

  • Размер дома 12х12 м
  • Число полных этажей 2
  • Высота потолков 3.4 м
  • Мансарда нет
  • Цокольный этаж нет
  • Площадь кухни 15 м2
  • Фундамент Плита
  • Стены Пеноблоки
  • Фасад Комбинированный фасад
  • Навес для машины нет
  • Гараж нет
  • Гараж на 2 машины нет
  • Веранда нет
  • Балкон да
  • Камин да
  • Баня нет
  • Бассейн нет
  • Второй свет нет
  • Барбекю нет
  • Стиль дома Современный Хай-тек

Построено по этому проекту

д. Красная Горка
д. Красная Горка
Подробнее
Площадь дома: 172 м2
Стоимость: 7 974 373 ₽

У вас уже есть проект!

Давайте его обсудим!

Мы составим смету и оптимизируем расходы. Доработаем ваш проект, или создадим новый.
Мы ответим Вам в течение 24 часов
Прикрепить файл

Похожие проекты

Дом на монолитном каркасе Еремино-2 двухэтажный 14х14

Получить презентацию проекта

Дом из керамического кирпича Ильмень-2 двухэтажный 14х14

Получить презентацию проекта
Записаться на встречу в офисе
Прикрепить файл
x
x
x
Позвонить в компанию
или
Заказать обратный звонок
Обратная форма связи
Заявка на бесплатную
видеоконсультацию