Дом на монолитном каркасе Лашми-2 одноэтажный с мансардой 15х15

Получить презентацию проекта

Построим вашу мечту

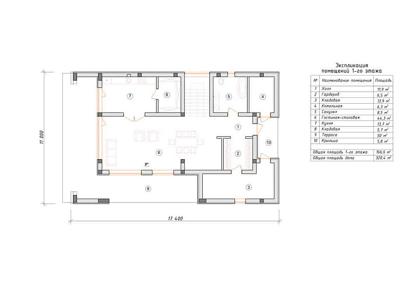
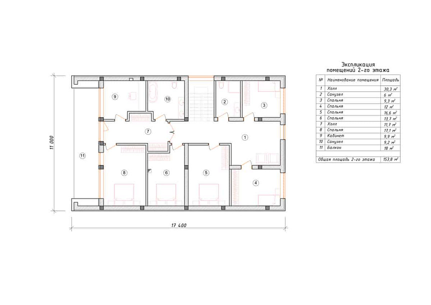
Характеристики проекта

  • Размер дома 15х15 м
  • Число полных этажей 1
  • Высота потолков 3.4 м
  • Мансарда да
  • Цокольный этаж нет
  • Площадь кухни 14 м2
  • Фундамент Финский фундамент
  • Стены Дома на монолитном каркасе
  • Фасад Комбинированный фасад
  • Навес для машины нет
  • Гараж нет
  • Гараж на 2 машины нет
  • Веранда да
  • Балкон да
  • Камин нет
  • Баня нет
  • Бассейн нет
  • Второй свет нет
  • Барбекю нет
  • Стиль дома Современный Барнхаус Скандинавский

Построено по этому проекту

д. Лопотово
д. Лопотово
Подробнее
Площадь дома: 306 м2
Стоимость: 13 429 023 ₽

У вас уже есть проект!

Давайте его обсудим!

Мы составим смету и оптимизируем расходы. Доработаем ваш проект, или создадим новый.
Мы ответим Вам в течение 24 часов
Прикрепить файл

Похожие проекты

Дом из пеноблоков Селигер одноэтажный с мансардой 12х12

Получить презентацию проекта

Дом из газосиликата Вельхан одноэтажный с мансардой 14х14

Получить презентацию проекта
Записаться на встречу в офисе
Прикрепить файл
x
x
x
Позвонить в компанию
или
Заказать обратный звонок
Обратная форма связи
Заявка на бесплатную
видеоконсультацию