Дом из оцилиндрованного бревна Пинчер-2 одноэтажный с мансардой 10х10

Получить презентацию проекта

Лучший дом для вашей семьи

Проект коттеджа наиболее популярного ценового сегмента "Пинчер-2" спроектированный нашими сотрудниками по эскизам заказчика. Важной чертой данного дома является просторный теплый гаражный бокс на два а/м. Это разумное решение для большой семьи, обладающей не одним автомобилем. Такой гараж позволит с легкостью поместить мотоцикл или квадроцикл, отыскать место для инструмента и садовой техники. Вместительное пространство гаража позволит установить мойку для автомобилей.

Построим вашу мечту

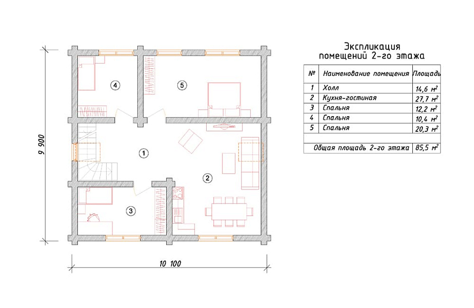
Характеристики проекта

  • Размер дома 10х10 м
  • Число полных этажей 1
  • Высота потолков 3.2 м
  • Мансарда да
  • Цокольный этаж нет
  • Площадь кухни 12 м2
  • Фундамент Свайный
  • Стены Оцилиндрованное
  • Фасад
  • Навес для машины нет
  • Гараж нет
  • Гараж на 2 машины да
  • Веранда нет
  • Балкон нет
  • Камин нет
  • Баня нет
  • Бассейн нет
  • Второй свет нет
  • Барбекю нет
  • Стиль дома Шале Русский

Описание дома

Проектом предусматривается один этаж плюс романтичная мансарда. Компоновка этажей характеризуется продуманностью и учитывает размещение инженерных систем, вид из окон и расположение сторон света. Планировочные решения здания включают 3 удобных спальни и 1 санузел. Размер всех помещений составляет 163 м2, размер кухни 12 м2. В данном проекте мы предусматриваем вариант фундамента - УШП фундамент. Это самый современный фундамент, идеально подходящий для загородного строительства в нашем холодном климате. Несущие стены этого проекта - оцилиндрованное бревно. По решению заказчика наши конструкторы переделают данный проект под другой материал стен, архитекторы детализируют планировки помещений и примут во внимание другие идеи заказчика.

У вас уже есть проект!

Давайте его обсудим!

Мы составим смету и оптимизируем расходы. Доработаем ваш проект, или создадим новый.
Мы ответим Вам в течение 24 часов
Прикрепить файл

Похожие проекты

Дом из газобетона Полесье одноэтажный с мансардой 10х10

Получить презентацию проекта

Дом из газобетона Лашми одноэтажный с мансардой 10x12

Получить презентацию проекта
Записаться на встречу в офисе
Прикрепить файл
x
x
x
Позвонить в компанию
или
Заказать обратный звонок
Обратная форма связи
Заявка на бесплатную
видеоконсультацию