Дом из керамического кирпича Шейк одноэтажный с мансардой 15х15

Получить презентацию проекта

Лучший дом для вашей семьи

Представляем проект коттеджа высокого ценового диапазона "Шейк" реализованный нашими архитекторами и конструкторами по результатам встречи с заказчиком в нашем офисе. Важным отличием данного дома является уютная финская сауна на дровах. Баня принесет вам и вашим близким радость жизни, порадует ароматом березового веника и вкусным квасом. С древности считается, что баня является залогом хорошего здоровья и долголетия.

Построим вашу мечту

Характеристики проекта

  • Размер дома 15х15 м
  • Число полных этажей 1
  • Высота потолков 3 м
  • Мансарда да
  • Цокольный этаж нет
  • Площадь кухни 9 м2
  • Фундамент Финский фундамент
  • Стены Керамический кирпич
  • Фасад Штукатурка
  • Навес для машины нет
  • Гараж нет
  • Гараж на 2 машины нет
  • Веранда нет
  • Балкон да
  • Камин нет
  • Баня да
  • Бассейн нет
  • Второй свет нет
  • Барбекю нет
  • Стиль дома Современный Хай-тек Лофт Европейский

Описание дома

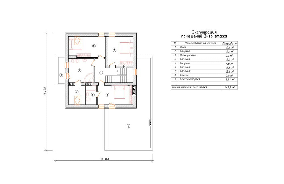
Проект одноэтажный и практичный мансардный этаж. Планировка пространства дома характеризуется продуманностью и учитывает размещение инженерных систем, вид из окон и расположение сторон света. Планировка включает 3 удобных спальни и 4 санузла. Размер всех помещений здания составляет 337 м2, размер кухни 9 м2. В данном проекте мы предусматриваем тип фундамента - монолитная мелко-заглубленная лента с утеплением. Этот вариант фундамента хорошо подходит, когда под домом большой перепад высоты рельефа, или клиент хочет поднять выше уровень комнат первого этажа. Материал несущих конструкций данного проекта - керамический кирпич. По вашему решению наши конструкторы поменяют проект под другой материал несущих конструкций, архитекторы уточнят жилое пространство и учтут другие пожелания заказчика.

У вас уже есть проект!

Давайте его обсудим!

Мы составим смету и оптимизируем расходы. Доработаем ваш проект, или создадим новый.
Мы ответим Вам в течение 24 часов
Прикрепить файл

Похожие проекты

Вы недавно смотрели

Дом из арболита Селигер 5 одноэтажный с мансардой 11х11

Получить презентацию проекта

Дом из газосиликата Шейк 4 одноэтажный с мансардой 15х15

Получить презентацию проекта
Записаться на встречу в офисе
Прикрепить файл
x
x
x
Позвонить в компанию
или
Заказать обратный звонок
Обратная форма связи
Заявка на бесплатную
видеоконсультацию