Дом из газобетона Радон-13 одноэтажный с мансардой 14х14

Получить презентацию проекта

Лучший дом для вашей семьи

Представляем проект коттеджа премиального ценового диапазона "Радон-13" спроектированный в нашей компании по результатам встречи с заказчиком в нашем офисе. Уникальная изюминка дома это - ощущение теплоты, создаваемое функциональным и красивым камином. Кроме эстетического удовольствия камин является эффективным нагревательным прибором, который отлично обогреет коттедж холодными зимними вечерами.

Построим вашу мечту

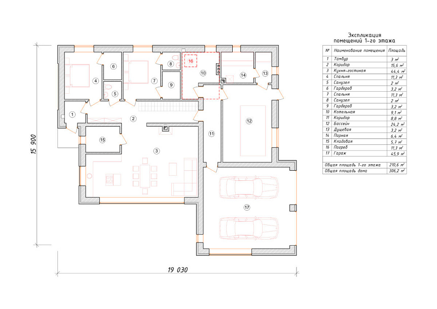
Характеристики проекта

  • Размер дома 14х14 м
  • Число полных этажей 1
  • Высота потолков 3.4 м
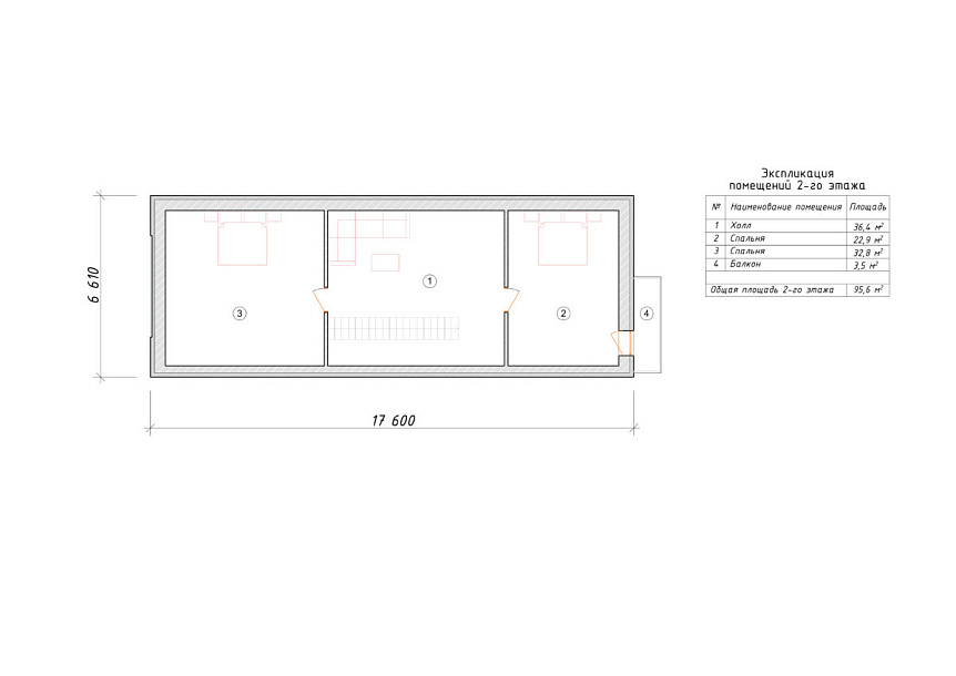
  • Мансарда да
  • Цокольный этаж нет
  • Площадь кухни 34 м2
  • Фундамент Финский фундамент
  • Стены Газобетон
  • Фасад Комбинированный фасад
  • Навес для машины нет
  • Гараж да
  • Гараж на 2 машины нет
  • Веранда нет
  • Балкон да
  • Камин да
  • Баня да
  • Бассейн нет
  • Второй свет нет
  • Барбекю нет
  • Стиль дома Минимализм

Описание дома

Проектом предусматривается одноэтажное здание и уютный мансардный этаж. Компоновка помещений отличается продуманностью и учитывает размещение инженерных систем, вид из окон и расположение сторон света. Планировочные решения включают 3 уютных спальни и 3 санузла. Планировочная площадь дома - 306 м2, размер кухонного пространства 34 м2. Для этого дома мы предусматриваем фундамент - бетонная мелко-заглубленная лента с утеплением ЭППС. Данная конструкция фундамента оптимально подходит если на участке большой перепад уровня земли, или хозяин хочет поднять выше уровень пола первого этажа. Материал несущих конструкций дома - газобетон. По вашему решению мы можем переделать проект под другой материал стен, актуализировать внутреннее пространство и принять по внимание другие ваши условия.

У вас уже есть проект!

Давайте его обсудим!

Мы составим смету и оптимизируем расходы. Доработаем ваш проект, или создадим новый.
Мы ответим Вам в течение 24 часов
Прикрепить файл

Похожие проекты

Дом из керамических блоков Шерон одноэтажный с мансардой 12х12

Получить презентацию проекта

Дом из полнотелого кирпича Шерон 2 одноэтажный с мансардой 13х13

Получить презентацию проекта
Записаться на встречу в офисе
Прикрепить файл
x
x
x
Позвонить в компанию
или
Заказать обратный звонок
Обратная форма связи
Заявка на бесплатную
видеоконсультацию