Дом из пеноблоков Полтава одноэтажный с мансардой 10х10

Получить презентацию проекта

Лучший дом для вашей семьи

Представляем вашему вниманию проект дома эконом класса "Полтава" разработанный нашими сотрудниками по рекомендациям заказчика. Этот уютный дом создает непередаваемую атмосферу деревенского колорита в сочетании с современными планировочными и техническими решениями. Светлые тона фасадной отделки гармонично сочетаются с лаконичным и продуманным дизайном всего коттеджа в целом.

Построим вашу мечту

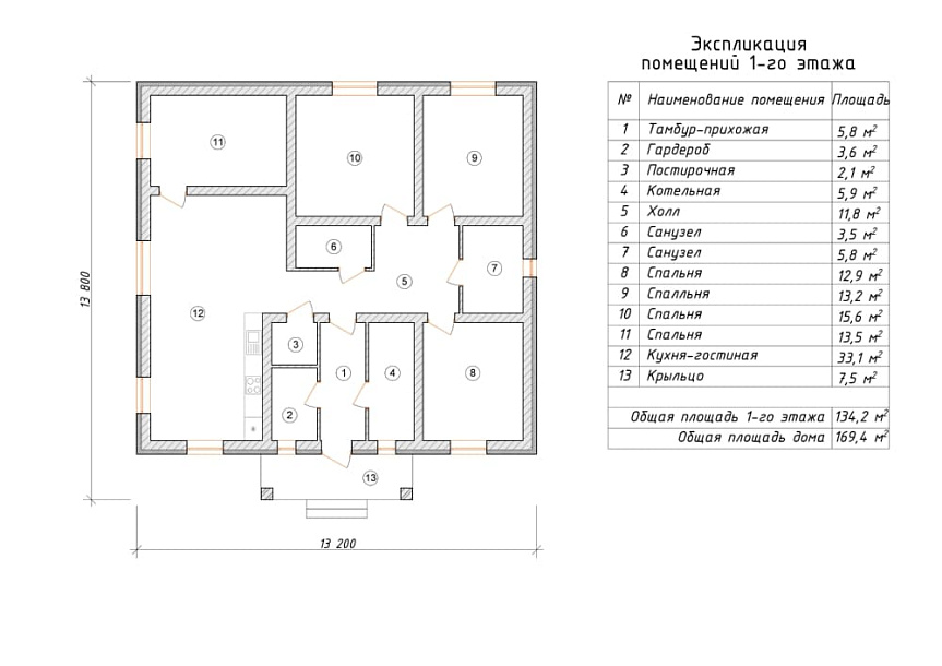
Характеристики проекта

  • Размер дома 10х10 м
  • Число полных этажей 1
  • Высота потолков 3 м
  • Мансарда да
  • Цокольный этаж нет
  • Площадь кухни 20 м2
  • Фундамент Плита
  • Стены Пеноблоки
  • Фасад Штукатурка
  • Навес для машины нет
  • Гараж нет
  • Гараж на 2 машины нет
  • Веранда нет
  • Балкон нет
  • Камин нет
  • Баня нет
  • Бассейн нет
  • Второй свет нет
  • Барбекю нет
  • Стиль дома Украинский Русский Европейский

Описание дома

Проект одноэтажный и практичный мансардный этаж. Компоновка комнат отличается функциональностью и учитывает размещение инженерных систем, вид из окон и расположение сторон света. Проектом предусматривается 4 комфортных спальни и 2 санузла. Полезная площадь помещений составляет 169 м2, размер кухонного пространства 20 м2. В данном проекте мы предусматриваем вариант фундамента - монолитная армированная плита толщиной 300 мм. Это надежный и наиболее дешевый вариант фундамент из всех. Стены этого здания - пеноблоки. В случае необходимости мы можем изменить проект под другой материал несущих конструкций, адаптировать поэтажные планы коттеджа и рассмотреть другие требования заказчика.

Построено по этому проекту

д. Введенское
д. Введенское
Подробнее
Площадь дома: 170 м2
Стоимость: 6 695 042 ₽

У вас уже есть проект!

Давайте его обсудим!

Мы составим смету и оптимизируем расходы. Доработаем ваш проект, или создадим новый.
Мы ответим Вам в течение 24 часов
Прикрепить файл

Похожие проекты

Дом из газобетона Полесье одноэтажный с мансардой 10х10

Получить презентацию проекта

Дом из газосиликата Монтерей-3 одноэтажный с мансардой 10х10

Получить презентацию проекта
Записаться на встречу в офисе
Прикрепить файл
x
x
x
Позвонить в компанию
или
Заказать обратный звонок
Обратная форма связи
Заявка на бесплатную
видеоконсультацию