Дом из поризованного кирпича Монтерей одноэтажный с мансардой 10х10

Получить презентацию проекта

Лучший дом для вашей семьи

Представляем проект частного дома экономичного сегмента "Монтерей" созданный нашими архитекторами и конструкторами по результатам встречи с заказчиком в нашем офисе. Индивидуальность данного дома это - замечательный камин, расположенный в гостиной и создающий неповторимую ауру. Помимо эстетического наслаждения камин является полезным обогревателем, который быстро обогреет дом зимой.

Построим вашу мечту

Характеристики проекта

  • Размер дома 10х10 м
  • Число полных этажей 1
  • Высота потолков 3 м
  • Мансарда да
  • Цокольный этаж нет
  • Площадь кухни 36 м2
  • Фундамент Плита
  • Стены Поризованный кирпич
  • Фасад Облицовочный кирпич
  • Навес для машины нет
  • Гараж нет
  • Гараж на 2 машины нет
  • Веранда нет
  • Балкон нет
  • Камин да
  • Баня нет
  • Бассейн нет
  • Второй свет нет
  • Барбекю нет
  • Стиль дома Русский Европейский

Описание дома

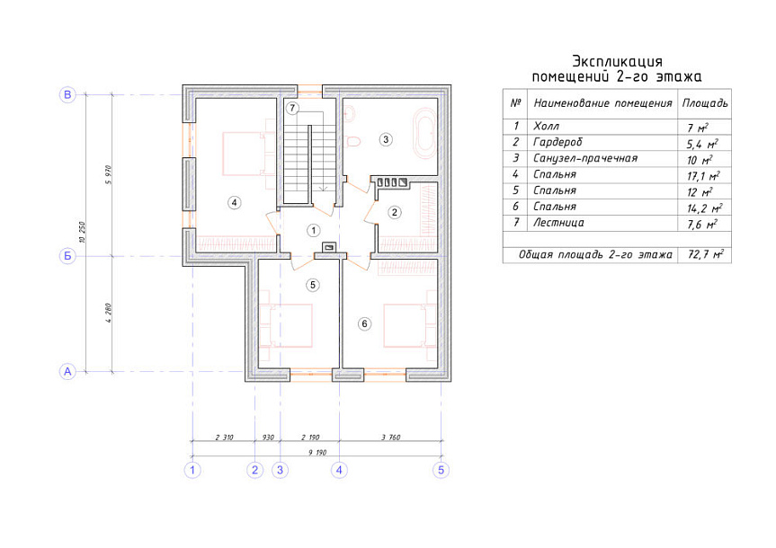
Дом в один полный этаж и удобный мансардный этаж. Компоновка помещений выделятся продуманностью и учитывает размещение инженерных систем, вид из окон и расположение сторон света. Проект дома включает 4 удобных спальни и 2 санузла. Размер помещений здания составляет 163 м2, размер кухонного пространства 36 м2. В данном коттедже мы предусматриваем фундамент - бетонная плита с утеплением толщиной 300 мм. Это практичный и наиболее дешевый тип фундамент из всех. Материал несущих конструкций - поризованный кирпич. Мы можем изменить проект под другой материал несущих конструкций, адаптировать расположение комнат дома и принять по внимание другие ваши требования.

У вас уже есть проект!

Давайте его обсудим!

Мы составим смету и оптимизируем расходы. Доработаем ваш проект, или создадим новый.
Мы ответим Вам в течение 24 часов
Прикрепить файл

Похожие проекты

Дом из щелевого кирпича Солотча-2 одноэтажный с мансардой 10x12

Получить презентацию проекта

Дом из клееного бруса Пинчер одноэтажный с мансардой 10х10

Получить презентацию проекта
Записаться на встречу в офисе
Прикрепить файл
x
x
x
Позвонить в компанию
или
Заказать обратный звонок
Обратная форма связи
Заявка на бесплатную
видеоконсультацию