Дом из пеноблоков Плутон одноэтажный 8х8

Получить презентацию проекта

Лучший дом для вашей семьи

Представляем вашему вниманию надежный дом "Плутон" реализованный архитекторами компании Монолит-домстрой по результатам встречи с заказчиком в нашем офисе. Основное достоинство этого проекта - праздничное настроение внутреннего пространства дома, которое возникает благодаря большой площади остекления. Считаем необходимым сказать, что вопреки ошибочному мнению большие окна не приводят к росту стоимости строительства дома. В настоящее время технологии производства позволяют увеличивать размер окон, не уменьшая энергоэффективность дома.

Построим вашу мечту

Характеристики проекта

  • Размер дома 8х8 м
  • Число полных этажей 1
  • Высота потолков 2.8 м
  • Мансарда нет
  • Цокольный этаж нет
  • Площадь кухни 15 м2
  • Фундамент Плита
  • Стены Пеноблоки
  • Фасад Штукатурка
  • Навес для машины нет
  • Гараж нет
  • Гараж на 2 машины нет
  • Веранда нет
  • Балкон нет
  • Камин нет
  • Баня нет
  • Бассейн нет
  • Второй свет да
  • Барбекю нет
  • Стиль дома Современный Фахверк

Описание дома

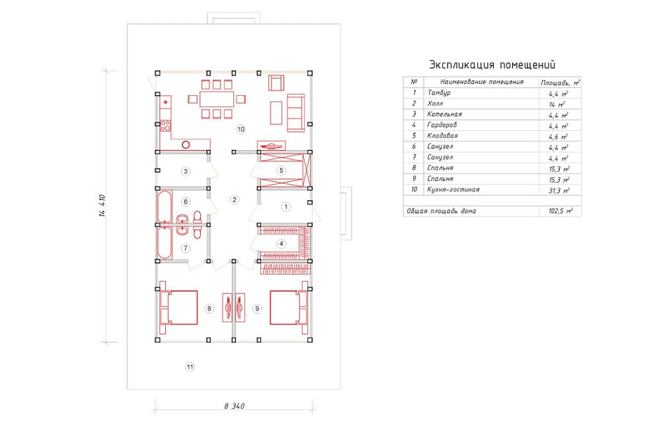
Дом в один полный этаж и вместительный чердак. Планировка помещений выделятся продуманностью и принимает во внимание размещение инженерных систем, вид из окон и расположение сторон света. Планировочные решения дома включают 2 комфортных спальни и 2 санузла. Площадь дома составляет 102 м2, площадь кухонного пространства 15 м2. В данном проекте мы советуем применить фундамент - бетонная армированная плита с утеплением толщиной 300 мм. Это быстровозводимый и самый экономически целесообразный вариант фундамента из всех. Материал несущих конструкций этого дома - пеноблоки. По решению заказчика мы можем изменить этот проект под другой материал несущих конструкций, актуализировать жилое пространство коттеджа и принять по внимание другие ваши требования.

У вас уже есть проект!

Давайте его обсудим!

Мы составим смету и оптимизируем расходы. Доработаем ваш проект, или создадим новый.
Мы ответим Вам в течение 24 часов
Прикрепить файл

Похожие проекты

Дом из газосиликата Валун одноэтажный 9x12

Получить презентацию проекта

Дом из пеноблоков Лаурис одноэтажный 8x12

Получить презентацию проекта
Записаться на встречу в офисе
Прикрепить файл
x
x
x
Позвонить в компанию
или
Заказать обратный звонок
Обратная форма связи
Заявка на бесплатную
видеоконсультацию