Дом из щелевого кирпича Арес-2 одноэтажный с мансардой 11х11

Получить презентацию проекта

Построим вашу мечту

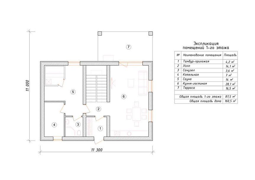
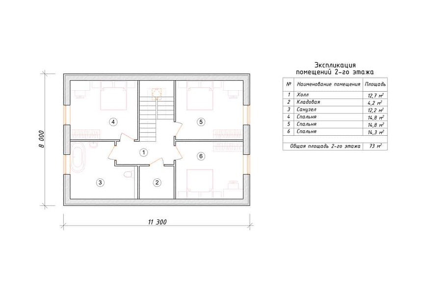
Характеристики проекта

  • Размер дома 11х11 м
  • Число полных этажей 1
  • Высота потолков 3.2 м
  • Мансарда да
  • Цокольный этаж нет
  • Площадь кухни 14 м2
  • Фундамент УШП
  • Стены Щелевой кирпич
  • Фасад Облицовочный кирпич
  • Навес для машины нет
  • Гараж нет
  • Гараж на 2 машины нет
  • Веранда да
  • Балкон нет
  • Камин нет
  • Баня да
  • Бассейн нет
  • Второй свет нет
  • Барбекю да
  • Стиль дома Современный Шале Русский

У вас уже есть проект!

Давайте его обсудим!

Мы составим смету и оптимизируем расходы. Доработаем ваш проект, или создадим новый.
Мы ответим Вам в течение 24 часов
Прикрепить файл

Похожие проекты

Дом из газобетона Истра одноэтажный с мансардой 8x12

Получить презентацию проекта

Дом из клееного бруса Полтава-6 одноэтажный с мансардой 10х10

Получить презентацию проекта
Записаться на встречу в офисе
Прикрепить файл
x
x
x
Позвонить в компанию
или
Заказать обратный звонок
Обратная форма связи
Заявка на бесплатную
видеоконсультацию