Дом из клееного бруса Пинчер одноэтажный с мансардой 10х10

Получить презентацию проекта

Лучший дом для вашей семьи

Представляем вашему вниманию проект коттеджа недорогого сегмента "Пинчер" реализованный в нашей компании по индивидуальному заказу. Эксклюзивность данного дома это - большой гаражный бокс на два а/м. Это хорошее решение для большой семьи, которая владеет не одним автомобилем. В таком гараже можно легко поместить мотоцикл или квадроцикл, отыскать место под садовый инвентарь и инструмент. Вместительная площадь позволит установить мойку для вашей машины.

Построим вашу мечту

Характеристики проекта

  • Размер дома 10х10 м
  • Число полных этажей 1
  • Высота потолков 3.2 м
  • Мансарда да
  • Цокольный этаж нет
  • Площадь кухни 12 м2
  • Фундамент Свайный
  • Стены Клееный
  • Фасад
  • Навес для машины нет
  • Гараж нет
  • Гараж на 2 машины да
  • Веранда нет
  • Балкон нет
  • Камин нет
  • Баня нет
  • Бассейн нет
  • Второй свет нет
  • Барбекю нет
  • Стиль дома Шале Немецкий

Описание дома

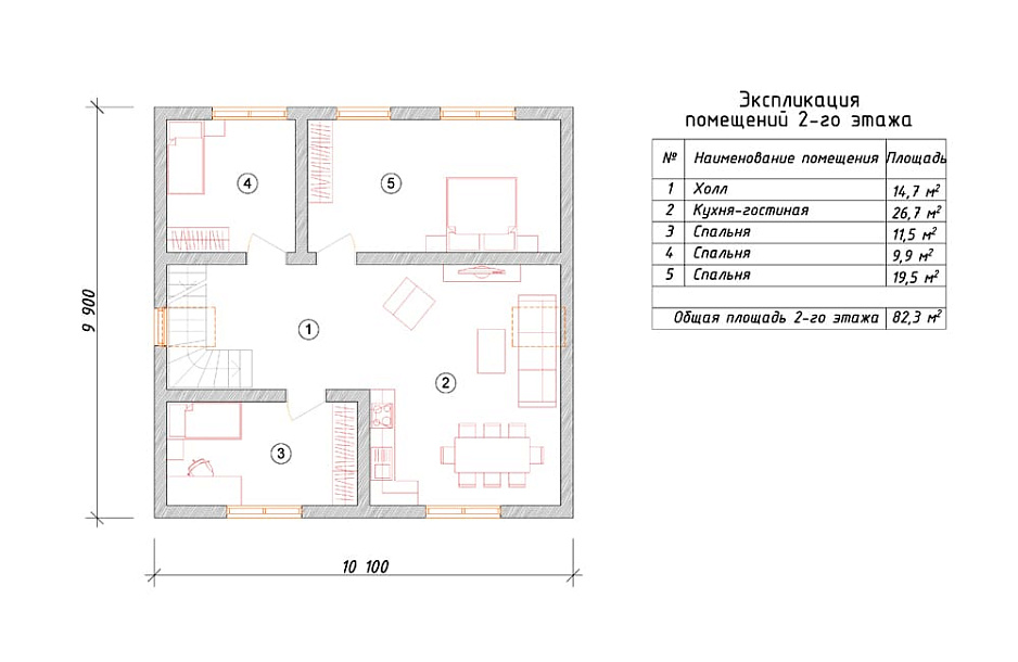
Проектом предусматривается одноэтажный коттедж с жилой мансардой. Планировка внутренних помещений отличается продуманностью и принимает во внимание размещение инженерных систем, вид из окон и расположение сторон света. Планировочные решения дома включают 3 комфортных спальни и 2 санузла. Площадь всех помещений - 165 м2, площадь кухонного пространства 12 м2. В этом доме мы рекомендуем использовать тип фундамента - монолитная армированная плита толщиной 300 мм. Это практичный и самый экономически выгодный вариант фундамента из всех. Несущие стены данного дома - клееный брус. Наши конструкторы могут изменить данный проект под другой материал, архитекторы симметрично развернут планировки этажей и примут во внимание любые другие ваши пожелания.

У вас уже есть проект!

Давайте его обсудим!

Мы составим смету и оптимизируем расходы. Доработаем ваш проект, или создадим новый.
Мы ответим Вам в течение 24 часов
Прикрепить файл

Похожие проекты

Дом из поризованного кирпича Жостово одноэтажный с мансардой 11х11

Получить презентацию проекта

Дом из керамических блоков Перикл одноэтажный с мансардой 10x12

Получить презентацию проекта
Записаться на встречу в офисе
Прикрепить файл
x
x
x
Позвонить в компанию
или
Заказать обратный звонок
Обратная форма связи
Заявка на бесплатную
видеоконсультацию