Дом из оцилиндрованного бревна Петри-2 двухэтажный 15х15

Получить презентацию проекта

Лучший дом для вашей семьи

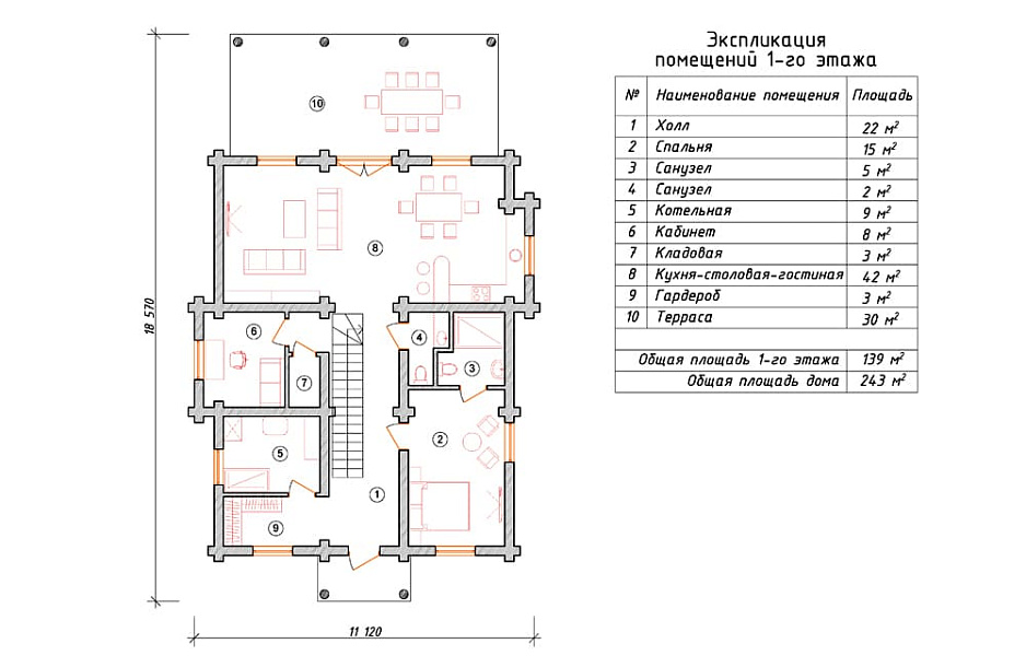
Проект недорогого коттеджа "Петри-2" реализованный сотрудниками компании Монолит-домстрой по рекомендациям заказчика. Очевидным преимуществом этого дома является просторная, эффектная веранда, которая гармонизирует внутреннее пространство вашего дома и уличное пространство. На этой просторной террасе можно устроить романтический ужин на свежем воздухе с друзьями и близкими.

Построим вашу мечту

Характеристики проекта

  • Размер дома 15х15 м
  • Число полных этажей 2
  • Высота потолков 3,4 м
  • Мансарда нет
  • Цокольный этаж нет
  • Площадь кухни 18 м2
  • Фундамент Свайный
  • Стены Оцилиндрованное
  • Фасад
  • Навес для машины нет
  • Гараж нет
  • Гараж на 2 машины нет
  • Веранда да
  • Балкон нет
  • Камин нет
  • Баня нет
  • Бассейн нет
  • Второй свет нет
  • Барбекю нет
  • Стиль дома Современный Классический Русский

Описание дома

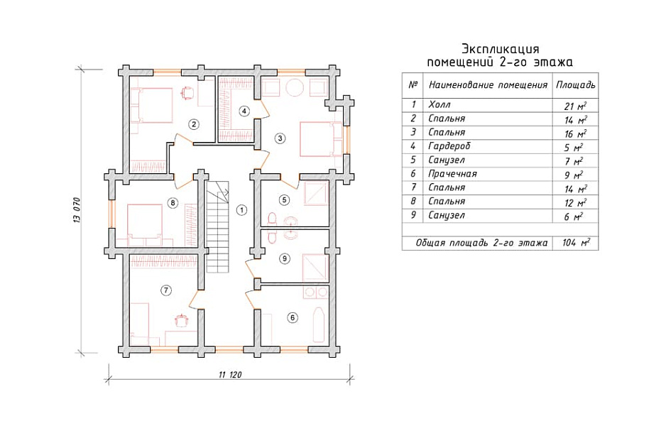
Коттедж в два полных этажа и холодный чердак. Компоновка помещений характеризуется продуманностью и учитывает размещение инженерных систем, вид из окон и расположение сторон света. Планировочные планы коттеджа включают 5 комфортных спален и 3 санузла. Планировочная площадь всех помещений дома составляет 243 м2, размер кухни 18 м2. Для этого коттеджа мы советуем применить вариант фундамента - УШП плита. Это самый теплый фундамент, великолепно подходящий для загородного строительства в нашем холодном климате. По проекту материал стен здания - оцилиндрованное бревно. Наши конструкторы могут поменять данный проект под другой материал, архитекторы адаптируют расположение комнат и рассмотрят другие идеи клиента.

У вас уже есть проект!

Давайте его обсудим!

Мы составим смету и оптимизируем расходы. Доработаем ваш проект, или создадим новый.
Мы ответим Вам в течение 24 часов
Прикрепить файл

Похожие проекты

Дом из полнотелого кирпича Пестово двухэтажный 13х13

Получить презентацию проекта

Дом на монолитном каркасе Гиацинт-2 двухэтажный 14х14

Получить презентацию проекта
Записаться на встречу в офисе
Прикрепить файл
x
x
x
Позвонить в компанию
или
Заказать обратный звонок
Обратная форма связи
Заявка на бесплатную
видеоконсультацию