Дом из пеноблоков Сильвер одноэтажный 15х15

Получить презентацию проекта

Лучший дом для вашей семьи

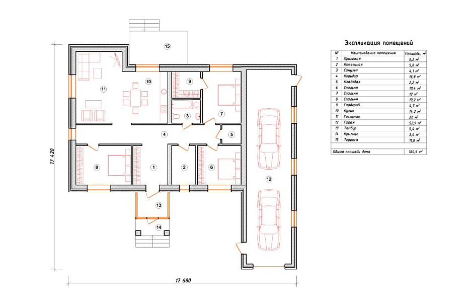
Представляем вашему вниманию дорогой коттедж "Сильвер" спроектированный нашими специалистами по рекомендациям заказчика. Характерное свойство проекта - вместительный крытый гараж на два автомобиля. Это хорошее решение для большой семьи, которая владеет не одним автомобилем. Вместительный гараж позволит установить механическую мойку для автомобилей. В таком гараже можно с легкостью разместить мотоцикл или квадроцикл, отыскать место под садовый инвентарь и инструмент.

Построим вашу мечту

Характеристики проекта

  • Размер дома 15х15 м
  • Число полных этажей 1
  • Высота потолков 3 м
  • Мансарда нет
  • Цокольный этаж нет
  • Площадь кухни 14 м2
  • Фундамент УШП
  • Стены Пеноблоки
  • Фасад Облицовочный кирпич
  • Навес для машины нет
  • Гараж нет
  • Гараж на 2 машины да
  • Веранда нет
  • Балкон нет
  • Камин нет
  • Баня нет
  • Бассейн нет
  • Второй свет нет
  • Барбекю нет
  • Стиль дома Голландский Немецкий Европейский

Описание дома

Проект одноэтажный с практичным чердаком. Планировка пространства дома отличается разумностью и учитывает размещение инженерных систем, вид из окон и расположение сторон света. Поэтажные планы включают 3 удобных спальни и 1 санузел. Полезная площадь всех помещений здания - 184 м2, размер кухонного пространства 14 м2. В этом проекте мы предлагаем применить тип фундамента - УШП плита. Это самый энергоэффективный фундамент, оптимально подходящий для индивидуального строительства в нашем холодном климате. Материал стен данного проекта - пеноблоки. По решению заказчика наши конструкторы переделают этот проект под другой материал, архитекторы переработают планы этажей и примут во внимание другие ваши пожелания.

У вас уже есть проект!

Давайте его обсудим!

Мы составим смету и оптимизируем расходы. Доработаем ваш проект, или создадим новый.
Мы ответим Вам в течение 24 часов
Прикрепить файл

Похожие проекты

Дом из теплоблоков Контур одноэтажный 14х14

Получить презентацию проекта

Дом из крупноформатных Матрикс одноэтажный 15х15

Получить презентацию проекта
Записаться на встречу в офисе
Прикрепить файл
x
x
x
Позвонить в компанию
или
Заказать обратный звонок
Обратная форма связи
Заявка на бесплатную
видеоконсультацию