Дом из монолитного полистиролбетона Шарапово одноэтажный с мансардой 11х11

Получить презентацию проекта

Лучший дом для вашей семьи

Представляем коттедж оптимального ценового сегмента "Шарапово" реализованный специалистами компании Монолит-домстрой по индивидуальному заказу. Важное отличие коттеджа это - огромные светлые окна, которые создают ощущение торжественности. Современные конструкции делают возможным увеличение высоты и ширины остекления, не снижая энергоэффективность дома. Нужно сказать, что вопреки ошибочному мнению большая площадь остекления не являются причиной роста бюджета на строительство.

Построим вашу мечту

Характеристики проекта

  • Размер дома 11х11 м
  • Число полных этажей 1
  • Высота потолков 3 м
  • Мансарда да
  • Цокольный этаж нет
  • Площадь кухни 18 м2
  • Фундамент Ленточный
  • Стены Монолитный полистиролбетон
  • Фасад Облицовочный кирпич
  • Навес для машины нет
  • Гараж да
  • Гараж на 2 машины нет
  • Веранда нет
  • Балкон нет
  • Камин нет
  • Баня да
  • Бассейн нет
  • Второй свет нет
  • Барбекю нет
  • Стиль дома Голландский

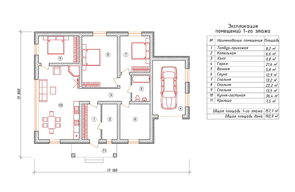
Описание дома

Коттедж в один этаж плюс теплое мансардное помещение. Планировка внутреннего пространства отличается разумностью и учитывает размещение инженерных систем, вид из окон и расположение сторон света. Планировочные планы предусматривают 4 комфортных спальни и 2 санузла. Планировочная площадь помещений - 193 м2, площадь кухни 18 м2. В данном доме мы предлагаем применить тип фундамента - утепленный шведский фундамент. Это самый теплый фундамент, оптимально подходящий для индивидуального строительства в нашем холодном климате. Проектом предусмотрен материал несущих конструкций - монолитный полистиролбетон. В случае необходимости мы можем переделать проект под другой материал несущих конструкций, переработать внутреннее пространство дома и рассмотреть другие условия заказчика.

У вас уже есть проект!

Давайте его обсудим!

Мы составим смету и оптимизируем расходы. Доработаем ваш проект, или создадим новый.
Мы ответим Вам в течение 24 часов
Прикрепить файл

Похожие проекты

Дом из газобетона Болдино одноэтажный с мансардой 11х11

Получить презентацию проекта

Дом из теплоблоков Вязники одноэтажный с мансардой 12х12

Получить презентацию проекта
Записаться на встречу в офисе
Прикрепить файл
x
x
x
Позвонить в компанию
или
Заказать обратный звонок
Обратная форма связи
Заявка на бесплатную
видеоконсультацию