Дом из керамзитобетона Белка-5 одноэтажный 13х13

Получить презентацию проекта

Лучший дом для вашей семьи

Представляем вашему вниманию недорогой комфортный дом "Белка-5" разработанный нашими архитекторами и конструкторами по эскизам заказчика. Очевидное преимущество представленного дома это - нестандартное архитектурное решение в виде окон угловой формы. Эти окна гарантируют, что ваш дом всегда будет выделяться среди друзей и знакомых и заполнят ярким светом жилые помещения.

Построим вашу мечту

Характеристики проекта

  • Размер дома 13х13 м
  • Число полных этажей 1
  • Высота потолков 3.2 м
  • Мансарда нет
  • Цокольный этаж нет
  • Площадь кухни 9 м2
  • Фундамент УШП
  • Стены Керамзитобетон
  • Фасад Облицовочный кирпич
  • Навес для машины нет
  • Гараж нет
  • Гараж на 2 машины нет
  • Веранда да
  • Балкон нет
  • Камин да
  • Баня нет
  • Бассейн нет
  • Второй свет нет
  • Барбекю нет
  • Стиль дома Современный Хай-тек Модерн Минимализм Лофт Европейский

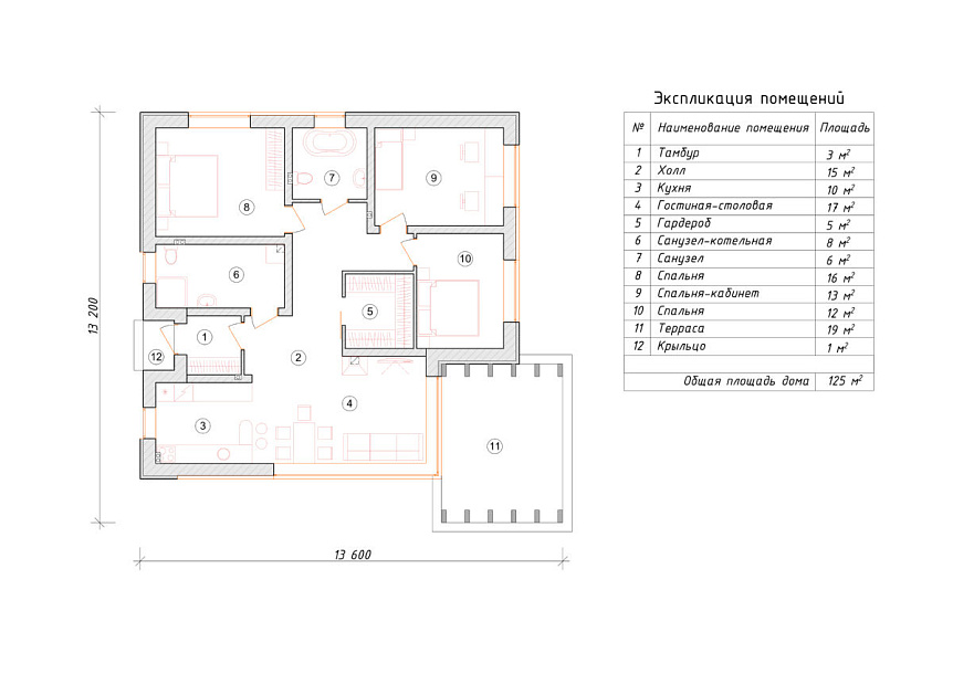
Описание дома

Проектом предусматривается один полный этаж с плоской крышей из ПВХ мембраны. Компоновка комнат характеризуется продуманностью и принимает во внимание размещение инженерных систем, вид из окон и расположение сторон света. Поэтажные планы предусматривают 3 комфортных спальни и 2 санузла. Планировочная площадь здания составляет 125 м2, размер кухонного пространства 9 м2. В данном коттедже мы предусматриваем вариант фундамента - УШП фундамент. Это самый теплый фундамент, оптимально подходящий для загородного строительства в нашей климатической зоне. Материал несущих стен данного коттеджа - керамзитобетон. В случае необходимости мы можем изменить этот проект под другой материал стен, переработать жилое пространство и учесть другие ваши пожелания.

У вас уже есть проект!

Давайте его обсудим!

Мы составим смету и оптимизируем расходы. Доработаем ваш проект, или создадим новый.
Мы ответим Вам в течение 24 часов
Прикрепить файл

Похожие проекты

Вы недавно смотрели

Дом из газобетона Корел одноэтажный 13х13

Получить презентацию проекта

Дом из крупноформатных Мелвик одноэтажный 10x12

Получить презентацию проекта
Записаться на встречу в офисе
Прикрепить файл
x
x
x
Позвонить в компанию
или
Заказать обратный звонок
Обратная форма связи
Заявка на бесплатную
видеоконсультацию