Дом на монолитном каркасе Корвет-3 двухэтажный 15х15

Получить презентацию проекта

Лучший дом для вашей семьи

Представляем респектабельный коттедж "Корвет-3" реализованный нашими специалистами по техническому заданию заказчика. Уникальной изюминкой дома является рациональная эксплуатируемая кровля. Такая кровля экономически выгодна так как позволяет расширить полезную площадь дома без лишних финансовых затрат. На этой крыше можно разбить декоративный сад и обустроить закрытую зону отдыха. И при этом какая несравненная картина на окружающий мир откроется с крыши вашего дома!

Построим вашу мечту

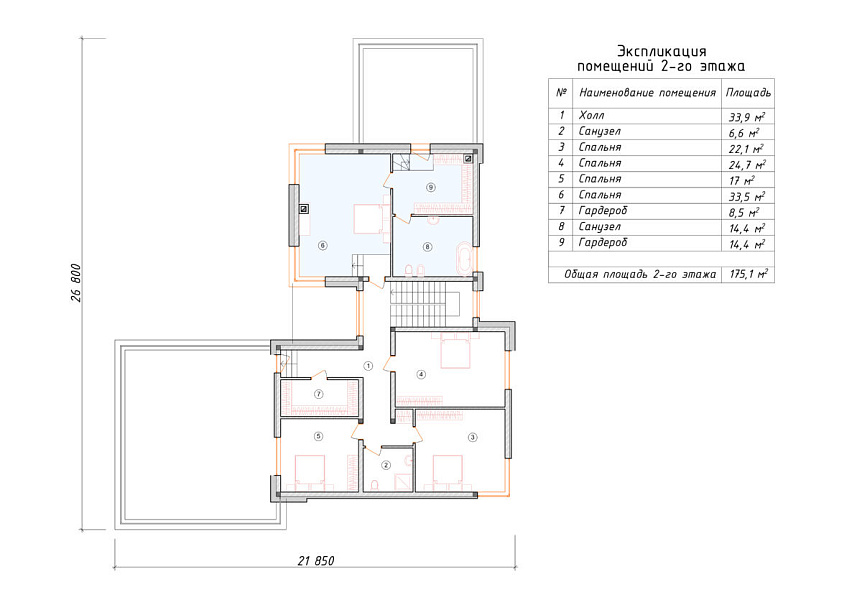
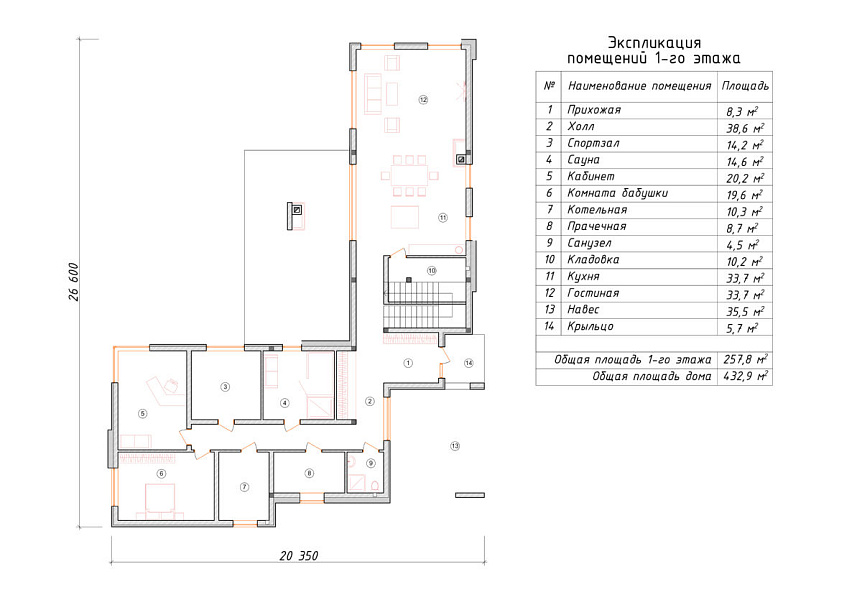
Характеристики проекта

  • Размер дома 15х15 м
  • Число полных этажей 2
  • Высота потолков 3.4 м
  • Мансарда нет
  • Цокольный этаж нет
  • Площадь кухни 44 м2
  • Фундамент Финский фундамент
  • Стены Дома на монолитном каркасе
  • Фасад Комбинированный фасад
  • Навес для машины нет
  • Гараж нет
  • Гараж на 2 машины нет
  • Веранда нет
  • Балкон нет
  • Камин да
  • Баня нет
  • Бассейн нет
  • Второй свет нет
  • Барбекю нет
  • Стиль дома Современный Хай-тек Модерн Лофт Европейский

Описание дома

Коттедж двухэтажный с плоской крышей. Планировка внутренних помещений выделятся продуманностью и принимает во внимание размещение инженерных систем, вид из окон и расположение сторон света. Планировочные решения включают 5 уютных спален и 3 санузла. Планировочная площадь всех помещений коттеджа составляет 433 м2, размер кухни 44 м2. В этом случае мы рекомендуем использовать вариант фундамента - монолитная лента мелко-заглубленная с утеплением Такая конструкция фундамента оптимально подходит, когда на участке значительный перепад уровня земли, или наш заказчик планирует поднять выше над землей уровень пола первого этажа. По проекту материал несущих стен - монолитный каркас. По решению заказчика наши конструкторы изменят этот проект под другой материал несущих конструкций, архитекторы переработают планировки помещений и примут во внимание любые другие идеи клиента.

Построено по этому проекту

к/п Пестово
к/п Пестово
Подробнее
Площадь дома: 430 м2
Стоимость: 20 504 357 ₽

У вас уже есть проект!

Давайте его обсудим!

Мы составим смету и оптимизируем расходы. Доработаем ваш проект, или создадим новый.
Мы ответим Вам в течение 24 часов
Прикрепить файл

Похожие проекты

Дом из керамических блоков Авеста двухэтажный 15х15

Получить презентацию проекта

Дом на монолитном каркасе Авеста-5 двухэтажный 15х15

Получить презентацию проекта
Записаться на встречу в офисе
Прикрепить файл
x
x
x
Позвонить в компанию
или
Заказать обратный звонок
Обратная форма связи
Заявка на бесплатную
видеоконсультацию