Дом Тэсс двухэтажный 13х13

Получить презентацию проекта

Лучший дом для вашей семьи

Представляем недорогой в эксплуатации коттедж "Тэсс" созданный конструкторами нашей компании по эскизам заказчика. Эксклюзивность данного дома это - рациональная эксплуатируемая крыша. Кровля такого типа экономически прибыльна, потому что позволяет увеличить площадь дома без дополнительных денежных расходов. На этой кровле можно сделать шикарную террасу для утреннего кофе. И при этом какой удивительный вид на окружающую природу откроется с крыши вашего дома!

Построим вашу мечту

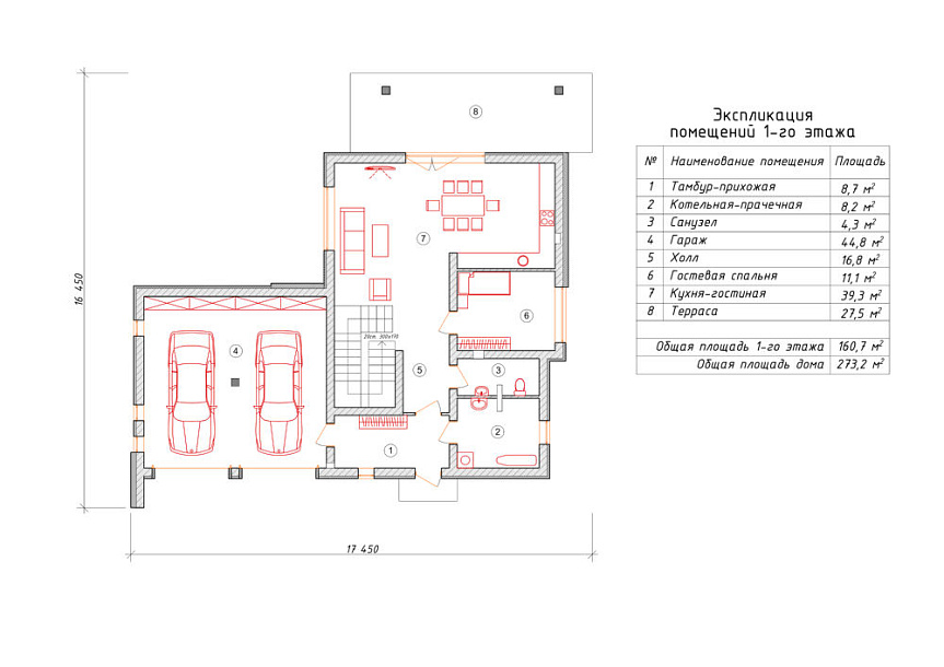
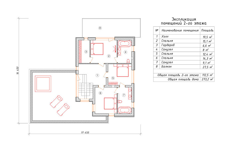
Характеристики проекта

  • Размер дома 13х13 м
  • Число полных этажей 2
  • Высота потолков 3.2 м
  • Мансарда нет
  • Цокольный этаж нет
  • Площадь кухни 15 м2
  • Фундамент УШП
  • Стены Ячеистый блок
  • Фасад Комбинированный фасад
  • Навес для машины нет
  • Гараж да
  • Гараж на 2 машины нет
  • Веранда нет
  • Балкон нет
  • Камин нет
  • Баня нет
  • Бассейн нет
  • Второй свет нет
  • Барбекю нет
  • Стиль дома Современный Хай-тек Модерн Американский Лофт Европейский Райта Скандинавский

Описание дома

Дом в два полных этажа и плоская кровля. Компоновка пространства дома характеризуется функциональностью и принимает во внимание размещение инженерных систем, вид из окон и расположение сторон света. Планировочные планы включают 4 комфортных спальни и 3 санузла. Планировочная площадь всех помещений составляет 273 м2, площадь кухонного пространства 15 м2. В этом доме мы предусматриваем фундамент - УШП плита. Это наиболее энергоэффективный фундамент, идеально подходящий для индивидуального строительства в нашей климатической зоне. По проекту материал несущих конструкций - несъемная опалубка. По решению заказчика наши конструкторы изменят проект под другой материал, архитекторы адаптируют планировки этажей и рассмотрят другие ваши требования.

У вас уже есть проект!

Давайте его обсудим!

Мы составим смету и оптимизируем расходы. Доработаем ваш проект, или создадим новый.
Мы ответим Вам в течение 24 часов
Прикрепить файл

Похожие проекты

Дом из газосиликата Марфино 4 двухэтажный 11х11

Получить презентацию проекта

Дом из керамических блоков Марфино 5 двухэтажный 12х12

Получить презентацию проекта
Записаться на встречу в офисе
Прикрепить файл
x
x
x
Позвонить в компанию
или
Заказать обратный звонок
Обратная форма связи
Заявка на бесплатную
видеоконсультацию