Дом Солана двухэтажный 11х11

Получить презентацию проекта

Лучший дом для вашей семьи

Представляем вашему вниманию дом оптимального ценового сегмента "Солана" созданный нашими конструкторами по результатам встречи с заказчиком в нашем офисе. Очевидным плюсом данного дома является функциональная эксплуатируемая крыша. Такая кровля экономически выгодна так как позволяет расширить полезную площадь вашего коттеджа без лишних финансовых затрат. На этой крыше можно удобно расположить: джакузи, мангал, зону отдыха, шезлонги для загара, разбить декоративный сад и многое другое. И при этом какая прекрасная картина на окружающий мир откроется с крыши вашего коттеджа!

Построим вашу мечту

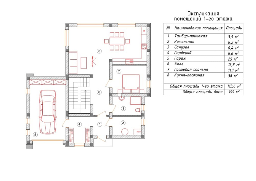
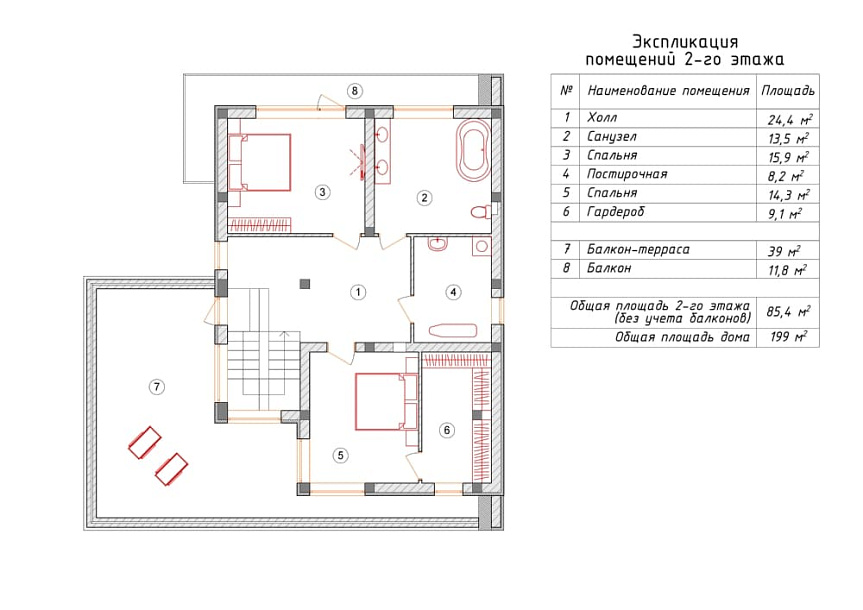
Характеристики проекта

  • Размер дома 11х11 м
  • Число полных этажей 2
  • Высота потолков 3 м
  • Мансарда нет
  • Цокольный этаж нет
  • Площадь кухни 18 м2
  • Фундамент УШП
  • Стены Ячеистый
  • Фасад Комбинированный фасад
  • Навес для машины нет
  • Гараж да
  • Гараж на 2 машины нет
  • Веранда нет
  • Балкон да
  • Камин нет
  • Баня нет
  • Бассейн нет
  • Второй свет нет
  • Барбекю нет
  • Стиль дома Современный Хай-тек Модерн Лофт Европейский Скандинавский

Описание дома

Проект в два этажа с плоской кровлей из ПВХ мембраны. Компоновка внутреннего пространства характеризуется разумностью и учитывает размещение инженерных систем, вид из окон и расположение сторон света. Проектом коттеджа предусматривается 3 удобных спальни и 2 санузла. Планировочная площадь всех помещений коттеджа составляет 200 м2, площадь кухни 18 м2. В этом случае мы рекомендуем применить фундамент - УШП фундамент. Это наиболее энергоэффективный фундамент, великолепно подходящий для индивидуального строительства в нашем холодном климате. Проектом предусмотрен материал несущих стен - несъемная опалубка. Наши конструкторы могут переделать данный проект под другой материал, архитекторы переработают расположение комнат и рассмотрят любые другие идеи клиента.

Построено по этому проекту

д. Островцы
д. Островцы
Подробнее
Площадь дома: 200 м2
Стоимость: 9 065 816 ₽

У вас уже есть проект!

Давайте его обсудим!

Мы составим смету и оптимизируем расходы. Доработаем ваш проект, или создадим новый.
Мы ответим Вам в течение 24 часов
Прикрепить файл

Похожие проекты

Дом из керамического кирпича Ирпень-2 двухэтажный 13х13

Получить презентацию проекта

Дом на монолитном каркасе Богарт-2 двухэтажный 12х12

Получить презентацию проекта
Записаться на встречу в офисе
Прикрепить файл
x
x
x
Позвонить в компанию
или
Заказать обратный звонок
Обратная форма связи
Заявка на бесплатную
видеоконсультацию