Дом из теплоблоков Витязь 3 двухэтажный 11х11

Получить презентацию проекта

Построим вашу мечту

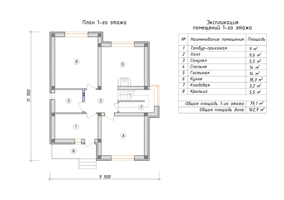
Характеристики проекта

  • Размер дома 11х11 м
  • Число полных этажей 2
  • Высота потолков 3 м
  • Мансарда нет
  • Цокольный этаж нет
  • Площадь кухни 30 м2
  • Фундамент Финский фундамент
  • Стены Теплоблоки
  • Фасад Штукатурка
  • Навес для машины да
  • Гараж нет
  • Гараж на 2 машины нет
  • Веранда да
  • Балкон да
  • Камин нет
  • Баня да
  • Бассейн нет
  • Второй свет да
  • Барбекю нет
  • Стиль дома Голландский Английский Американский Лофт Немецкий Европейский Райта Скандинавский

У вас уже есть проект!

Давайте его обсудим!

Мы составим смету и оптимизируем расходы. Доработаем ваш проект, или создадим новый.
Мы ответим Вам в течение 24 часов
Прикрепить файл

Похожие проекты

Дом из керамических блоков Калдис двухэтажный 10x12

Получить презентацию проекта

Дом Рондар 2 двухэтажный 10x12

Получить презентацию проекта
Записаться на встречу в офисе
Прикрепить файл
x
x
x
Позвонить в компанию
или
Заказать обратный звонок
Обратная форма связи
Заявка на бесплатную
видеоконсультацию