Дом из керамического кирпича Эльза 7 двухэтажный 12х12

Получить презентацию проекта

Построим вашу мечту

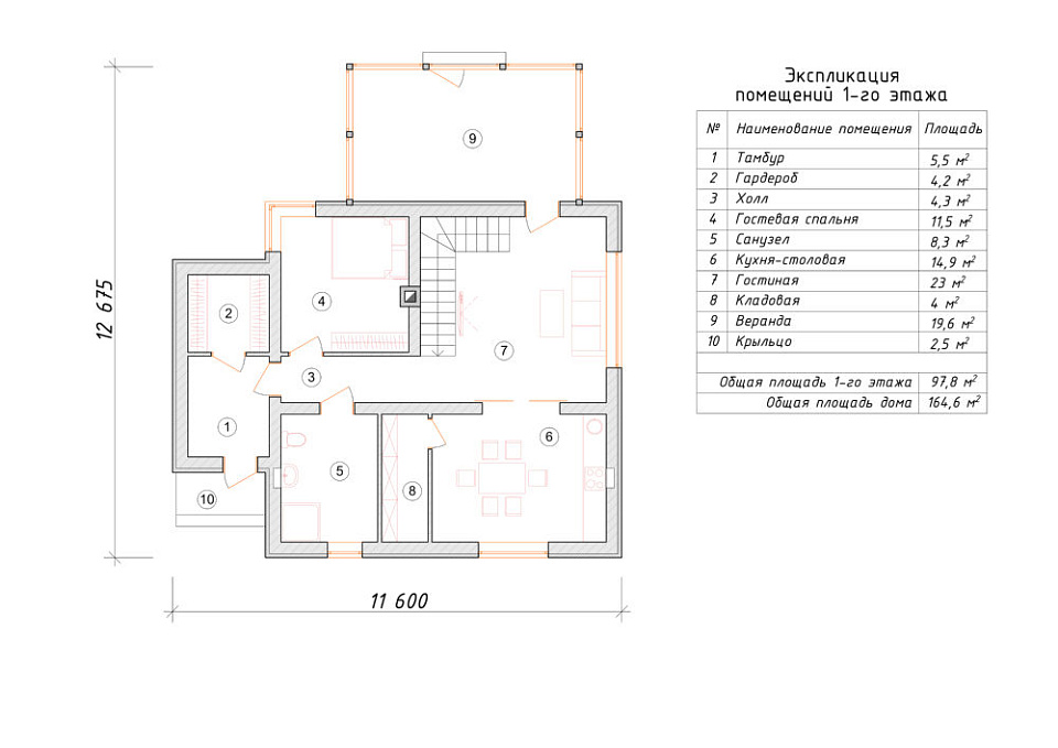
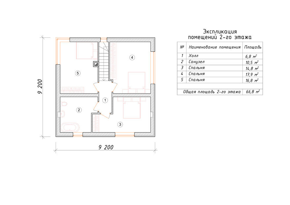
Характеристики проекта

  • Размер дома 12х12 м
  • Число полных этажей 2
  • Высота потолков 3 м
  • Мансарда нет
  • Цокольный этаж нет
  • Площадь кухни 43 м2
  • Фундамент Финский фундамент
  • Стены Керамический кирпич
  • Фасад Облицовочный кирпич
  • Навес для машины нет
  • Гараж нет
  • Гараж на 2 машины нет
  • Веранда да
  • Балкон нет
  • Камин нет
  • Баня нет
  • Бассейн нет
  • Второй свет да
  • Барбекю нет
  • Стиль дома Голландский Английский Минимализм Классический Русский

У вас уже есть проект!

Давайте его обсудим!

Мы составим смету и оптимизируем расходы. Доработаем ваш проект, или создадим новый.
Мы ответим Вам в течение 24 часов
Прикрепить файл

Похожие проекты

Дом из теплоблоков Карпаты 1 одноэтажный с мансардой 9х9

Получить презентацию проекта

Дом Карпаты 4 одноэтажный с мансардой 9x10

Получить презентацию проекта
Записаться на встречу в офисе
Прикрепить файл
x
x
x
Позвонить в компанию
или
Заказать обратный звонок
Обратная форма связи
Заявка на бесплатную
видеоконсультацию