Дом из газобетона Гриндерс-1 трехэтажный 15х15

Получить презентацию проекта

Построим вашу мечту

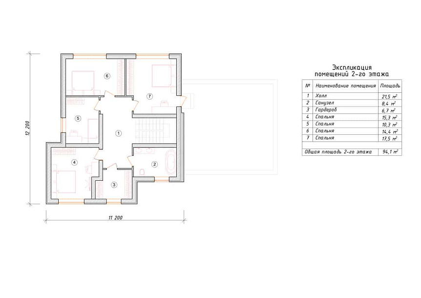
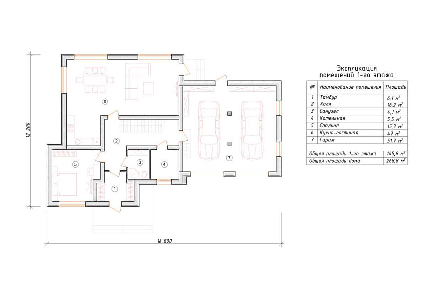
Характеристики проекта

  • Размер дома 15х15 м
  • Число полных этажей 3
  • Высота потолков 3.2 м
  • Мансарда нет
  • Цокольный этаж нет
  • Площадь кухни 20 м2
  • Фундамент УШП
  • Стены Газобетон
  • Фасад Штукатурка
  • Навес для машины нет
  • Гараж нет
  • Гараж на 2 машины да
  • Веранда нет
  • Балкон да
  • Камин нет
  • Баня нет
  • Бассейн нет
  • Второй свет нет
  • Барбекю нет
  • Стиль дома Современный Хай-тек

У вас уже есть проект!

Давайте его обсудим!

Мы составим смету и оптимизируем расходы. Доработаем ваш проект, или создадим новый.
Мы ответим Вам в течение 24 часов
Прикрепить файл

Похожие проекты

Дом из монолитного полистиролбетона Берген трехэтажный 10x12

Получить презентацию проекта

Дом на монолитном каркасе Гриндерс-2 трехэтажный 15х15

Получить презентацию проекта
Записаться на встречу в офисе
Прикрепить файл
x
x
x
Позвонить в компанию
или
Заказать обратный звонок
Обратная форма связи
Заявка на бесплатную
видеоконсультацию