Дом на монолитном каркасе Акира-4 двухэтажный 15х15

Получить презентацию проекта

Построим вашу мечту

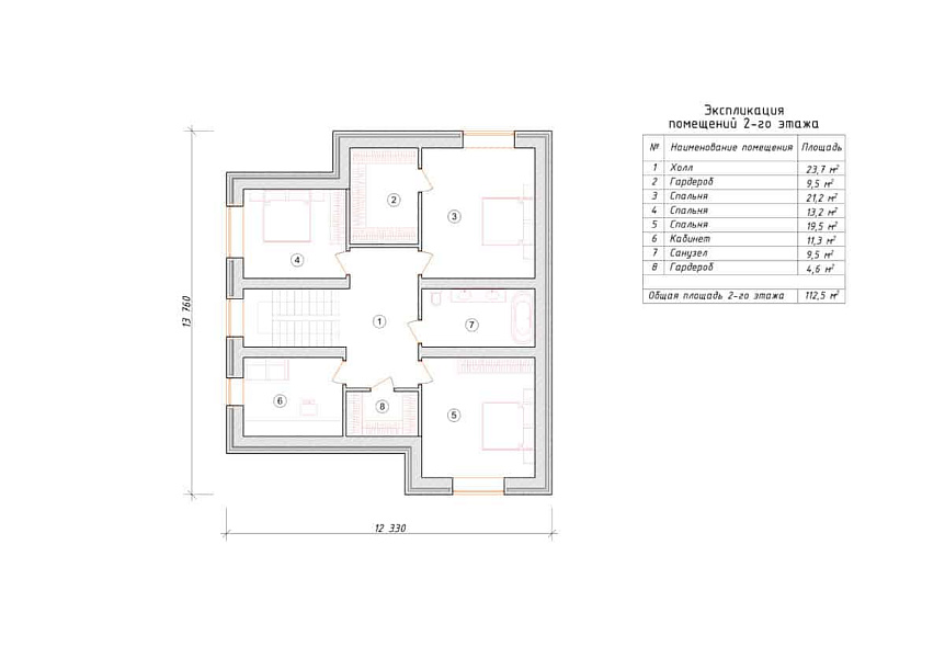
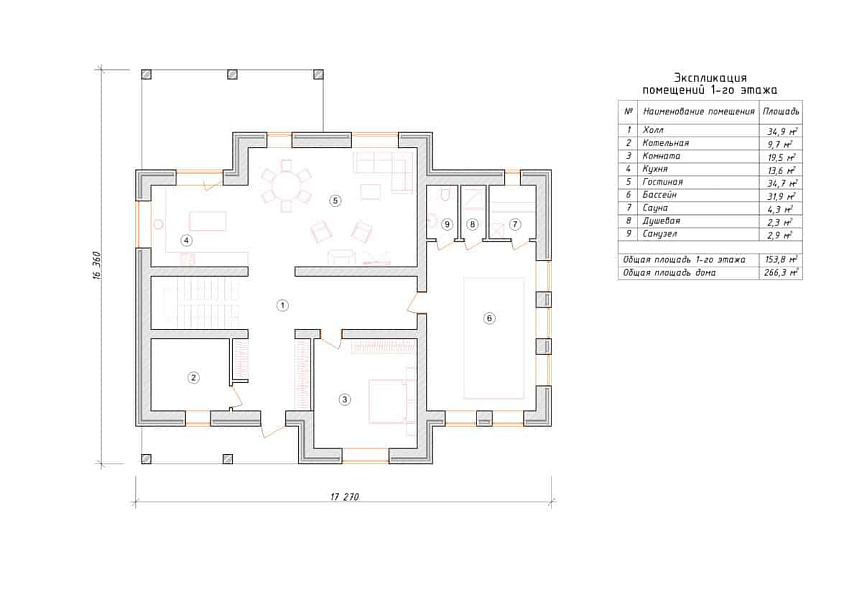
Характеристики проекта

  • Размер дома 15х15 м
  • Число полных этажей 2
  • Высота потолков 3,4 м
  • Мансарда нет
  • Цокольный этаж нет
  • Площадь кухни 14 м2
  • Фундамент УШП
  • Стены Дома на монолитном каркасе
  • Фасад Облицовочный кирпич
  • Навес для машины нет
  • Гараж да
  • Гараж на 2 машины нет
  • Веранда да
  • Балкон нет
  • Камин да
  • Баня да
  • Бассейн да
  • Второй свет нет
  • Барбекю нет
  • Стиль дома Современный Шале Русский

У вас уже есть проект!

Давайте его обсудим!

Мы составим смету и оптимизируем расходы. Доработаем ваш проект, или создадим новый.
Мы ответим Вам в течение 24 часов
Прикрепить файл

Похожие проекты

Дом из полнотелого кирпича Пестово двухэтажный 13х13

Получить презентацию проекта

Дом из газобетона Зефир двухэтажный 13х13

Получить презентацию проекта
Записаться на встречу в офисе
Прикрепить файл
x
x
x
Позвонить в компанию
или
Заказать обратный звонок
Обратная форма связи
Заявка на бесплатную
видеоконсультацию