Дом из оцилиндрованного бревна Креп-2 двухэтажный 11х11

Получить презентацию проекта

Лучший дом для вашей семьи

Представляем вашему вниманию проект дома наиболее популярного ценового сегмента "Креп-2" реализованный нашими архитекторами по рекомендациям заказчика. Индивидуальностью этого проекта является чувство комфорта, создаваемое функциональным и красивым камином. Помимо эстетического удовольствия камин является функциональным обогревателем, который отлично согреет коттедж холодными зимними вечерами.

Построим вашу мечту

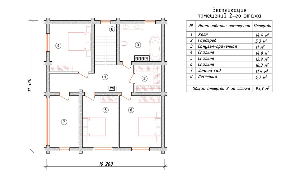
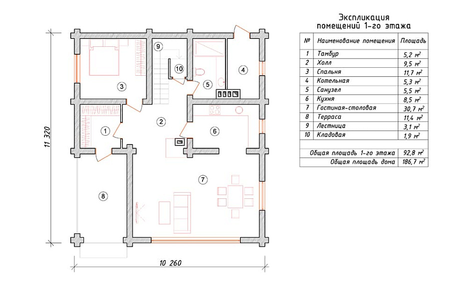
Характеристики проекта

  • Размер дома 11х11 м
  • Число полных этажей 2
  • Высота потолков 3,4 м
  • Мансарда нет
  • Цокольный этаж нет
  • Площадь кухни 8 м2
  • Фундамент Свайный
  • Стены Оцилиндрованное
  • Фасад
  • Навес для машины нет
  • Гараж нет
  • Гараж на 2 машины нет
  • Веранда да
  • Балкон нет
  • Камин да
  • Баня нет
  • Бассейн нет
  • Второй свет нет
  • Барбекю нет
  • Стиль дома Современный Русский

Описание дома

Проектом предусматривается два этажа с удобным чердачным помещением. Планировка внутреннего пространства выделятся разумностью и учитывает размещение инженерных систем, вид из окон и расположение сторон света. Планировка коттеджа предусматривает 4 удобных спальни и 2 санузла. Полезная площадь всех помещений составляет 184 м2, площадь кухни 8 м2. В этом проекте мы предлагаем применить тип фундамента - утепленный шведский фундамент. Это самый современный фундамент, оптимально подходящий для загородного строительства в нашем холодном климате. Материал несущих стен данного дома - оцилиндрованное бревно. По решению заказчика мы можем поменять этот проект под другой материал, детализировать планировки помещений дома и учесть любые другие ваши условия.

У вас уже есть проект!

Давайте его обсудим!

Мы составим смету и оптимизируем расходы. Доработаем ваш проект, или создадим новый.
Мы ответим Вам в течение 24 часов
Прикрепить файл

Похожие проекты

Дом комбинированный Галера-2 двухэтажный 12х12

Получить презентацию проекта

Дом из газосиликата Богарт-8 двухэтажный 12х12

Получить презентацию проекта
Записаться на встречу в офисе
Прикрепить файл
x
x
x
Позвонить в компанию
или
Заказать обратный звонок
Обратная форма связи
Заявка на бесплатную
видеоконсультацию