Дом из клееного бруса Рэй одноэтажный 14х14

Получить презентацию проекта

Лучший дом для вашей семьи

Представляем дом наиболее популярного ценового сегмента "Рэй" созданный сотрудниками компании Монолит-домстрой по эскизам заказчика. Конкурентным преимуществом представленного проекта является ощущение торжественности внутреннего пространства дома, которое возникает благодаря огромным окнам. Нужно сказать, что вопреки ошибочному мнению панорамные окна не являются причиной повышения бюджета на строительство. Современные конструктивные решения делают возможным увеличение высоты и ширины окон, не увеличивая теплопотери.

Построим вашу мечту

Характеристики проекта

  • Размер дома 14х14 м
  • Число полных этажей 1
  • Высота потолков 3.2 м
  • Мансарда нет
  • Цокольный этаж нет
  • Площадь кухни 18 м2
  • Фундамент Свайный
  • Стены Клееный
  • Фасад
  • Навес для машины нет
  • Гараж нет
  • Гараж на 2 машины нет
  • Веранда да
  • Балкон нет
  • Камин да
  • Баня нет
  • Бассейн нет
  • Второй свет нет
  • Барбекю нет
  • Стиль дома Украинский Русский Европейский

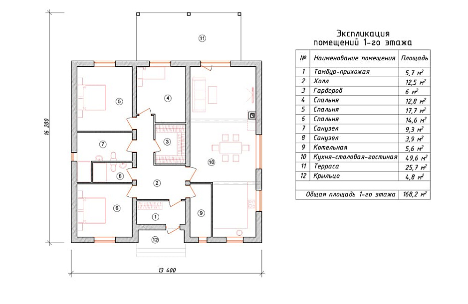
Описание дома

Проектом предусматривается одноэтажный дом и удобный чердак. Планировка комнат характеризуется функциональностью и принимает во внимание размещение инженерных систем, вид из окон и расположение сторон света. Планировка дома предусматривает 3 удобных спальни и 2 санузла. Полезная площадь дома - 168 м2, площадь кухонного пространства 18 м2. Для этого дома мы советуем использовать тип фундамента - монолитная армированная плита мелкого заложения толщиной 300 мм. Это практичный и самый экономически целесообразный фундамент из всех. Материал стен данного проекта - клееный брус. По вашему решению мы можем переделать этот проект под другой материал, переработать расположение комнат дома и принять по внимание другие ваши условия.

У вас уже есть проект!

Давайте его обсудим!

Мы составим смету и оптимизируем расходы. Доработаем ваш проект, или создадим новый.
Мы ответим Вам в течение 24 часов
Прикрепить файл

Похожие проекты

Дом из керамзитобетона Вертикаль 2 одноэтажный 14х14

Получить презентацию проекта

Дом из поризованного кирпича Каллен 2 одноэтажный 15х15

Получить презентацию проекта
Записаться на встречу в офисе
Прикрепить файл
x
x
x
Позвонить в компанию
или
Заказать обратный звонок
Обратная форма связи
Заявка на бесплатную
видеоконсультацию