Дом из двойного бруса Горн двухэтажный 15х15

Получить презентацию проекта

Лучший дом для вашей семьи

Представляем недорогой в строительстве дом "Горн" разработанный в нашей компании по техническому заданию заказчика. Важным конкурентным преимуществом этого проекта является широкая, великолепная веранда, которая соединяет помещения вашего дома и уличное пространство. На этой уютной террасе можно встретиться на свежем воздухе с друзьями и близкими.

Построим вашу мечту

Характеристики проекта

  • Размер дома 15х15 м
  • Число полных этажей 2
  • Высота потолков 3,4 м
  • Мансарда нет
  • Цокольный этаж нет
  • Площадь кухни 19 м2
  • Фундамент Свайный
  • Стены Двойной
  • Фасад
  • Навес для машины нет
  • Гараж да
  • Гараж на 2 машины нет
  • Веранда да
  • Балкон да
  • Камин нет
  • Баня нет
  • Бассейн нет
  • Второй свет нет
  • Барбекю нет
  • Стиль дома Современный Русский Европейский

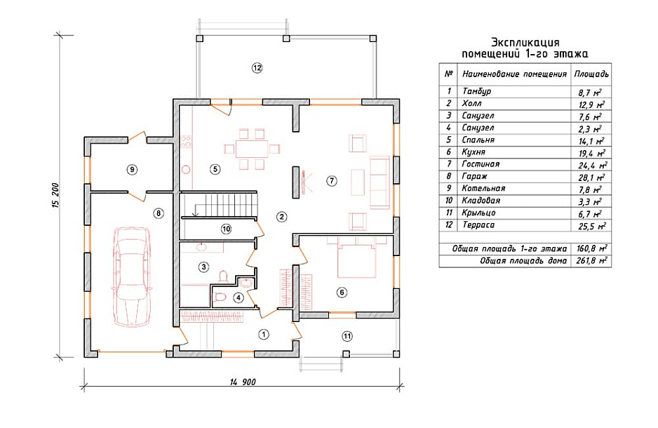
Описание дома

Дом в два этажа плюс функциональное чердачное помещение. Планировка внутреннего пространства отличается разумностью и принимает во внимание размещение инженерных систем, вид из окон и расположение сторон света. Планировочные решения включают 4 уютных спальни и 3 санузла. Планировочная площадь всех помещений составляет 262 м2, размер кухонного пространства 19 м2. В данном проекте мы предусматриваем вариант фундамента - УШП плита. Это наиболее теплый фундамент, оптимально подходящий для загородного строительства в нашем холодном климате. Стены по проекту - двойной брус. По вашему решению наши конструкторы поменяют данный проект под другой материал несущих конструкций, архитекторы переработают расположение помещений и примут во внимание любые другие идеи заказчика.

У вас уже есть проект!

Давайте его обсудим!

Мы составим смету и оптимизируем расходы. Доработаем ваш проект, или создадим новый.
Мы ответим Вам в течение 24 часов
Прикрепить файл

Похожие проекты

Вы недавно смотрели

Дом из полнотелого кирпича Вешки 1 двухэтажный 13х13

Получить презентацию проекта

Дом из газосиликата Вешки 5 двухэтажный 14х14

Получить презентацию проекта
Записаться на встречу в офисе
Прикрепить файл
x
x
x
Позвонить в компанию
или
Заказать обратный звонок
Обратная форма связи
Заявка на бесплатную
видеоконсультацию