Дом из клееного бруса Стрелец-2 двухэтажный 15х15

Получить презентацию проекта

Лучший дом для вашей семьи

Представляем коттедж недорогого класса "Стрелец-2" разработанный нашими архитекторами по техническому заданию заказчика. Преимуществом дома является ощущение торжественности внутри дома, которое возникает благодаря большим светлым окнам. В настоящее время технологии делают возможным увеличение высоты и ширины остекления, не снижая энергоэффективность дома. Необходимо отметить, что вопреки распространенному мнению большие окна не приводят к росту затрат на строительство.

Построим вашу мечту

Характеристики проекта

  • Размер дома 15х15 м
  • Число полных этажей 2
  • Высота потолков 3,4 м
  • Мансарда нет
  • Цокольный этаж нет
  • Площадь кухни 16 м2
  • Фундамент Свайный
  • Стены Клееный
  • Фасад
  • Навес для машины нет
  • Гараж нет
  • Гараж на 2 машины да
  • Веранда да
  • Балкон нет
  • Камин нет
  • Баня нет
  • Бассейн нет
  • Второй свет нет
  • Барбекю нет
  • Стиль дома Современный Русский

Описание дома

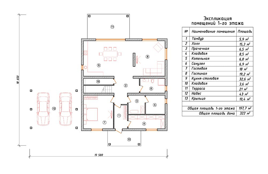
Проект двухэтажный с полезным чердаком. Планировка этажей выделятся продуманностью и принимает во внимание размещение инженерных систем, вид из окон и расположение сторон света. Планировочные решения включают 5 удобных спален и 3 санузла. Планировочная площадь всех помещений коттеджа составляет 322 м2, размер кухни 16 м2. Для этого дома мы советуем применить тип фундамента - бетонная лента мелко-заглубленная утепленная Этот тип фундамента оптимально подходит, когда в пятне застройки существенный перепад высоты, или хозяин дома хочет поднять выше над землей уровень пола. По проекту материал стен дома - клееный брус. По вашему решению наши конструкторы изменят этот проект под другой материал стен, архитекторы детализируют расположение помещений и рассмотрят другие идеи заказчика.

У вас уже есть проект!

Давайте его обсудим!

Мы составим смету и оптимизируем расходы. Доработаем ваш проект, или создадим новый.
Мы ответим Вам в течение 24 часов
Прикрепить файл

Похожие проекты

Вы недавно смотрели

Дом из газосиликата Лахти 9 двухэтажный 14х14

Получить презентацию проекта

Дом из газобетона Ричмонд 3 двухэтажный 12х12

Получить презентацию проекта
Записаться на встречу в офисе
Прикрепить файл
x
x
x
Позвонить в компанию
или
Заказать обратный звонок
Обратная форма связи
Заявка на бесплатную
видеоконсультацию