Дом из оцилиндрованного бревна Спаркс-2 двухэтажный 12х12

Получить презентацию проекта

Лучший дом для вашей семьи

Представляем вашему вниманию проект частного дома наиболее популярного ценового сегмента "Спаркс-2" разработанный нашими конструкторами по эскизам заказчика. Важным отличием этого проекта является ощущение воздушности гостиной дома, которое создается вторым светом. Главным арт-объектом такого дома является великолепная межэтажная лестница. Подобный дизайн интерьеров характерен для дорогих домов большой площади.

Построим вашу мечту

Характеристики проекта

  • Размер дома 12х12 м
  • Число полных этажей 2
  • Высота потолков 3,4 м
  • Мансарда нет
  • Цокольный этаж нет
  • Площадь кухни 17 м2
  • Фундамент Свайный
  • Стены Оцилиндрованное
  • Фасад
  • Навес для машины нет
  • Гараж нет
  • Гараж на 2 машины нет
  • Веранда да
  • Балкон да
  • Камин нет
  • Баня нет
  • Бассейн нет
  • Второй свет да
  • Барбекю нет
  • Стиль дома Современный Русский

Описание дома

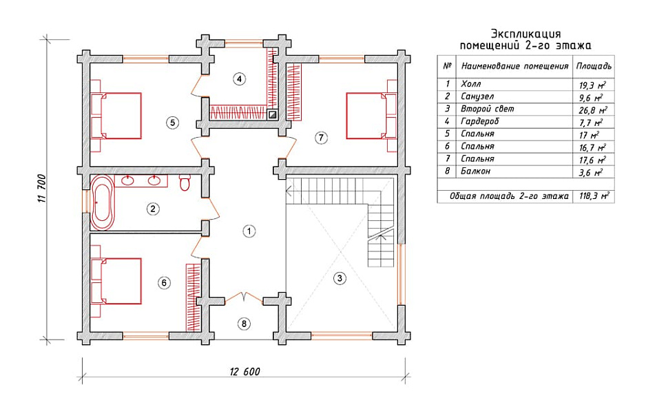
Коттедж двухэтажный с объемным чердачным помещением. Компоновка помещений характеризуется функциональностью и учитывает размещение инженерных систем, вид из окон и расположение сторон света. Планировочные планы включают 4 уютных спальни и 2 санузла. Размер всех помещений дома - 237 м2, площадь кухни 17 м2. В этом коттедже мы предлагаем использовать фундамент - монолитная лента мелко-заглубленная с утеплением Такой вариант фундамента хорошо подходит, когда под домом заметный перепад уровня земли, или наш заказчик планирует поднять выше уровень комнат. Материал несущих стен данного здания - оцилиндрованное бревно. Мы можем изменить этот проект под другой материал стен, уточнить расположение комнат дома и рассмотреть другие требования заказчика.

У вас уже есть проект!

Давайте его обсудим!

Мы составим смету и оптимизируем расходы. Доработаем ваш проект, или создадим новый.
Мы ответим Вам в течение 24 часов
Прикрепить файл

Похожие проекты

Дом из керамического кирпича Газель-2 двухэтажный 14х14

Получить презентацию проекта

Дом из керамзитобетона Ильмень двухэтажный 14х14

Получить презентацию проекта
Записаться на встречу в офисе
Прикрепить файл
x
x
x
Позвонить в компанию
или
Заказать обратный звонок
Обратная форма связи
Заявка на бесплатную
видеоконсультацию