Дом из профилированного бруса Селена одноэтажный 9х9

Получить презентацию проекта

Лучший дом для вашей семьи

Представляем вашему вниманию проект частного дома оптимального ценового диапазона "Селена" созданный нашими конструкторами по результатам встречи с заказчиком в нашем офисе. Важной чертой представленного дома является внушительная, гармоничная веранда, которая гармонизирует внутренние помещения вашего дома и уличное пространство. На этой просторной веранде можно собраться на свежем воздухе с друзьями и близкими.

Построим вашу мечту

Характеристики проекта

  • Размер дома 9х9 м
  • Число полных этажей 1
  • Высота потолков 3 м
  • Мансарда нет
  • Цокольный этаж нет
  • Площадь кухни 15 м2
  • Фундамент Свайный
  • Стены Профилированный
  • Фасад
  • Навес для машины нет
  • Гараж нет
  • Гараж на 2 машины нет
  • Веранда нет
  • Балкон нет
  • Камин нет
  • Баня нет
  • Бассейн нет
  • Второй свет нет
  • Барбекю нет
  • Стиль дома Немецкий Русский Европейский

Описание дома

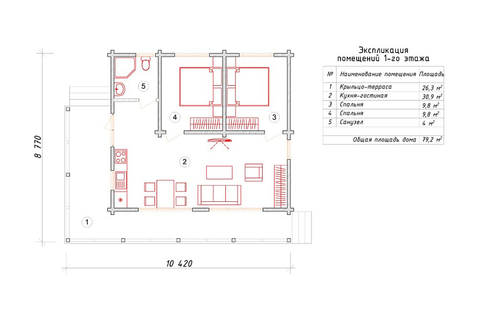
Проектом предусматривается одноэтажный коттедж плюс объемное чердачное помещение. Планировка жилых помещений отличается разумностью и учитывает размещение инженерных систем, вид из окон и расположение сторон света. Планировочные решения здания предусматривают 2 комфортных спальни и 1 санузел. Планировочная площадь всех помещений дома - 79 м2, размер кухонного пространства 15 м2. В этом доме мы предусматриваем тип фундамента - мелко-заглубленная плита толщиной 250 мм. Это простой и самый экономически выгодный тип фундамент из всех. Материал несущих конструкций коттеджа - профилированный брус. По решению заказчика наши конструкторы изменят проект под другой материал несущих конструкций, архитекторы адаптируют планировки и примут во внимание любые другие требования клиента.

У вас уже есть проект!

Давайте его обсудим!

Мы составим смету и оптимизируем расходы. Доработаем ваш проект, или создадим новый.
Мы ответим Вам в течение 24 часов
Прикрепить файл

Похожие проекты

Дом из пеноблоков Валис 2 одноэтажный 10х10

Получить презентацию проекта

Дом из полистеролбетона Линия 2 одноэтажный 8x12

Получить презентацию проекта
Записаться на встречу в офисе
Прикрепить файл
x
x
x
Позвонить в компанию
или
Заказать обратный звонок
Обратная форма связи
Заявка на бесплатную
видеоконсультацию