Дом из керамического кирпича Борнео двухэтажный 15х15

Получить презентацию проекта

Лучший дом для вашей семьи

Представляем дорогой дом "Борнео" созданный в нашей компании по рекомендациям заказчика. Уникальная черта представленного проекта это - ощущение торжественности в интерьерах дома, которое появляется благодаря панорамному остеклению. Нужно отметить, что вопреки распространенному мнению окна с большой площадью остекления не приводят к повышению цены за строительство дома в целом. Современные конструктивные решения делают возможным увеличение размеров окон, не повышая теплопотери дома.

Построим вашу мечту

Характеристики проекта

  • Размер дома 15х15 м
  • Число полных этажей 2
  • Высота потолков 3.4 м
  • Мансарда нет
  • Цокольный этаж нет
  • Площадь кухни 15 м2
  • Фундамент Финский фундамент
  • Стены Керамический кирпич
  • Фасад Облицовочный кирпич
  • Навес для машины нет
  • Гараж да
  • Гараж на 2 машины нет
  • Веранда нет
  • Балкон нет
  • Камин нет
  • Баня нет
  • Бассейн нет
  • Второй свет нет
  • Барбекю нет
  • Стиль дома Классический Русский Европейский Французский

Описание дома

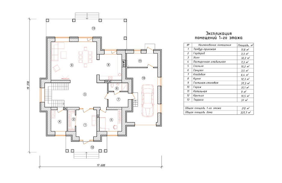
Проектом предусматривается два полных этажа с функциональным чердаком. Планировка помещений выделятся разумностью и учитывает размещение инженерных систем, вид из окон и расположение сторон света. Проектом предусматривается 4 комфортных спальни и 3 санузла. Площадь всех помещений здания - 338 м2, размер кухни 15 м2. Для этого коттеджа мы предлагаем использовать фундамент - бетонная мелкого заложения утепленная лента. Данный фундамент оптимально подходит если под домом существенный перепад высоты, или заказчик требует приподнять высотную отметку комнат первого этажа над землей. Несущие стены этого проекта - керамический кирпич. В случае необходимости мы можем изменить данный проект под другой материал, адаптировать расположение комнат дома и рассмотреть другие пожелания заказчика.

У вас уже есть проект!

Давайте его обсудим!

Мы составим смету и оптимизируем расходы. Доработаем ваш проект, или создадим новый.
Мы ответим Вам в течение 24 часов
Прикрепить файл

Похожие проекты

Дом из газосиликата Лахти 9 двухэтажный 14х14

Получить презентацию проекта

Дом из газобетона Мякинино 5 двухэтажный 13х13

Получить презентацию проекта
Записаться на встречу в офисе
Прикрепить файл
x
x
x
Позвонить в компанию
или
Заказать обратный звонок
Обратная форма связи
Заявка на бесплатную
видеоконсультацию