Дом из газобетона Филин одноэтажный 15х15

Получить презентацию проекта

Лучший дом для вашей семьи

Представляем VIP дом "Филин" созданный в компании Монолит-домстрой по техническому заданию заказчика. Важное преимущество представленного дома это - великолепная баня на дровах. Баня принесет вам и вашим близким счастье, порадует ароматом дубового веника и вкусным квасом. С древности считается, что баня служит порукой хорошего здоровья и долголетия.

Построим вашу мечту

Характеристики проекта

  • Размер дома 15х15 м
  • Число полных этажей 1
  • Высота потолков 3 м
  • Мансарда нет
  • Цокольный этаж нет
  • Площадь кухни 16 м2
  • Фундамент УШП
  • Стены Газобетон
  • Фасад Комбинированный фасад
  • Навес для машины нет
  • Гараж нет
  • Гараж на 2 машины нет
  • Веранда да
  • Балкон нет
  • Камин да
  • Баня да
  • Бассейн нет
  • Второй свет нет
  • Барбекю нет
  • Стиль дома Современный Шале Европейский Французский Скандинавский

Описание дома

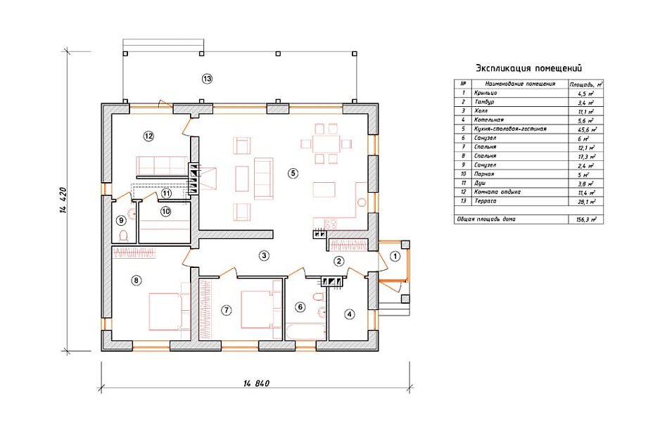
Проектом предусматривается одноэтажный дом и холодный чердак. Планировка пространства дома отличается разумностью и принимает во внимание размещение инженерных систем, вид из окон и расположение сторон света. Проектом коттеджа предусматривается 2 удобных спальни и 2 санузла. Полезная площадь всех помещений дома - 156 м2, площадь кухни 16 м2. В этом коттедже мы советуем применить фундамент - утепленный шведский фундамент. Это самый теплый фундамент, оптимально подходящий для коттеджного строительства в нашем холодном климате. Материал несущих стен коттеджа - газобетон. В случае необходимости наши конструкторы поменяют этот проект под другой материал, архитекторы адаптируют планировки этажей и рассмотрят любые другие идеи заказчика.

У вас уже есть проект!

Давайте его обсудим!

Мы составим смету и оптимизируем расходы. Доработаем ваш проект, или создадим новый.
Мы ответим Вам в течение 24 часов
Прикрепить файл

Похожие проекты

Дом из рубленого бревна Адонис-2 одноэтажный 15х15

Получить презентацию проекта

Дом на монолитном каркасе Велессо-2 одноэтажный 14х14

Получить презентацию проекта
Записаться на встречу в офисе
Прикрепить файл
x
x
x
Позвонить в компанию
или
Заказать обратный звонок
Обратная форма связи
Заявка на бесплатную
видеоконсультацию