Дом из щелевого кирпича Тигрис двухэтажный 13х13

Получить презентацию проекта

Лучший дом для вашей семьи

Представляем проект частного дома премиального сегмента "Тигрис" созданный нашими специалистами по рекомендациям заказчика. Важным преимуществом этого проекта является праздничное настроение внутри дома, которое возникает благодаря панорамному остеклению. Нужно отметить, что вопреки распространенному мнению панорамные окна не ведут к увеличению затрат на строительство. В настоящее время технологии производства делают возможным увеличение размеров окон, не снижая энергоэффективность дома.

Построим вашу мечту

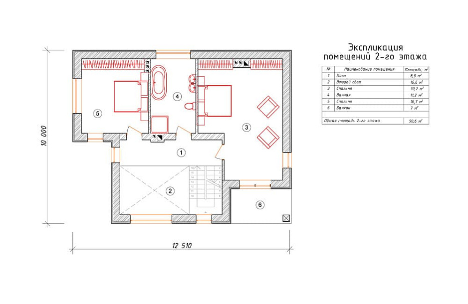
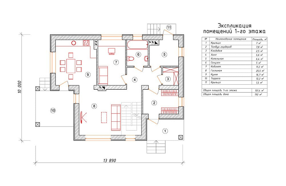
Характеристики проекта

  • Размер дома 13х13 м
  • Число полных этажей 2
  • Высота потолков 3 м
  • Мансарда нет
  • Цокольный этаж нет
  • Площадь кухни 17 м2
  • Фундамент УШП
  • Стены Щелевой кирпич
  • Фасад Комбинированный фасад
  • Навес для машины нет
  • Гараж нет
  • Гараж на 2 машины нет
  • Веранда да
  • Балкон да
  • Камин нет
  • Баня нет
  • Бассейн нет
  • Второй свет да
  • Барбекю нет
  • Стиль дома Классический Русский

Описание дома

Коттедж в два этажа и практичный чердак. Компоновка этажей выделятся функциональностью и принимает во внимание размещение инженерных систем, вид из окон и расположение сторон света. Проектом предусматривается 2 комфортных спальни и 2 санузла. Площадь всех помещений дома составляет 192 м2, размер кухонного пространства 17 м2. В этом проекте мы советуем использовать фундамент - УШП плита. Это самый энергоэффективный фундамент, идеально подходящий для коттеджного строительства в нашей климатической зоне. По проекту материал стен - щелевой кирпич. В случае необходимости мы можем переделать данный проект под другой материал, адаптировать планировки этажей коттеджа и рассмотреть другие ваши требования.

У вас уже есть проект!

Давайте его обсудим!

Мы составим смету и оптимизируем расходы. Доработаем ваш проект, или создадим новый.
Мы ответим Вам в течение 24 часов
Прикрепить файл

Похожие проекты

Дом комбинированный Галера двухэтажный 12х12

Получить презентацию проекта

Дом из газосиликата Богарт-8 двухэтажный 12х12

Получить презентацию проекта
Записаться на встречу в офисе
Прикрепить файл
x
x
x
Позвонить в компанию
или
Заказать обратный звонок
Обратная форма связи
Заявка на бесплатную
видеоконсультацию