Дом из щелевого кирпича Ямбург двухэтажный 9х9

Получить презентацию проекта

Лучший дом для вашей семьи

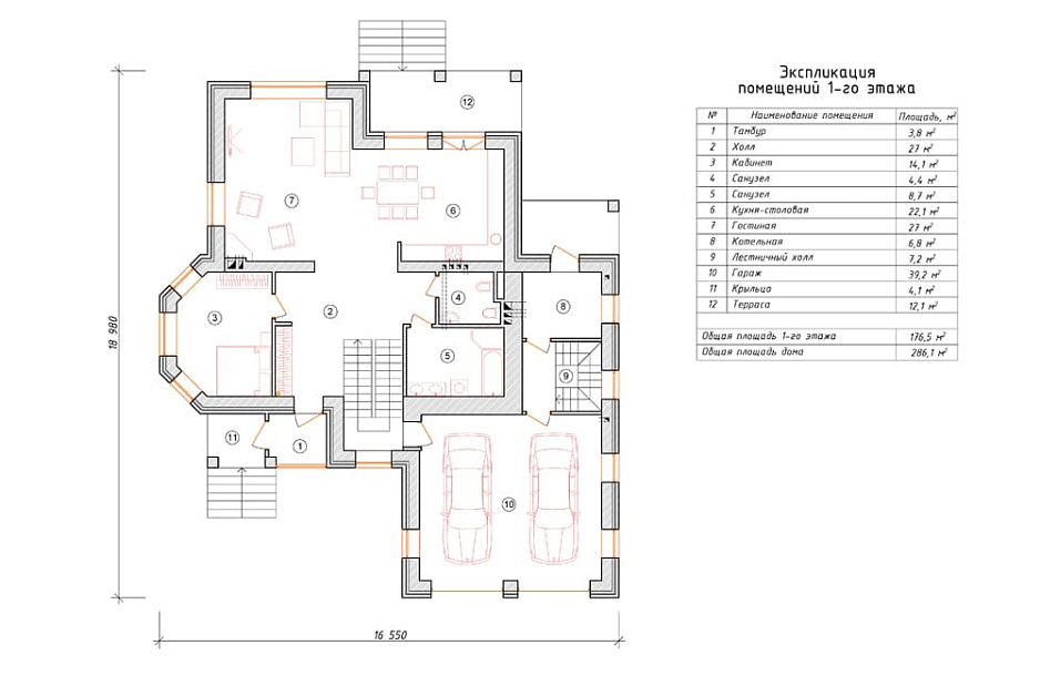
Представляем вашему вниманию коттедж в стиле минимализм "Ямбург" спроектированный нашими специалистами по эскизам заказчика. Нетривиальность дома - просторный теплый гаражный бокс на два а/м. Это отличное решение для многодетной семьи, обладающей двумя автомобилями. Большое пространство гаража позволит установить мойку для вашей машины. Такой гараж позволит легко расположить складские стеллажи и небольшую мастерскую, найти свободное место для инструмента и садовой техники.

Построим вашу мечту

Характеристики проекта

  • Размер дома 9х9 м
  • Число полных этажей 2
  • Высота потолков 2.8 м
  • Мансарда нет
  • Цокольный этаж нет
  • Площадь кухни 22 м2
  • Фундамент Плита
  • Стены Щелевой кирпич
  • Фасад Облицовочный кирпич
  • Навес для машины нет
  • Гараж нет
  • Гараж на 2 машины да
  • Веранда да
  • Балкон нет
  • Камин нет
  • Баня нет
  • Бассейн нет
  • Второй свет нет
  • Барбекю нет
  • Стиль дома Русский

Описание дома

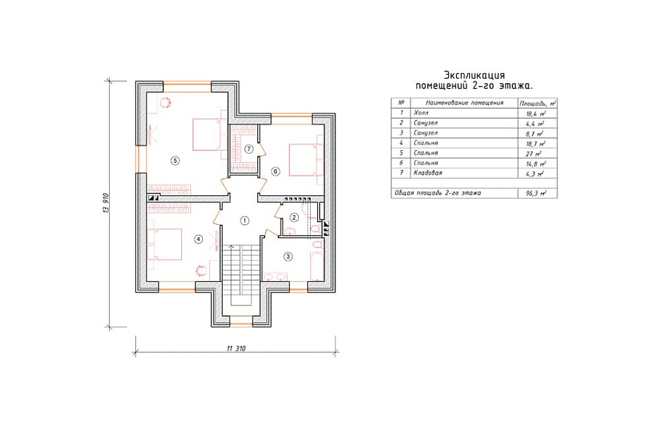
Дом в два этажа плюс функциональный чердак. Планировка помещений характеризуется функциональностью и учитывает размещение инженерных систем, вид из окон и расположение сторон света. Проект включает 3 комфортных спальни и 4 санузла. Размер всех помещений дома составляет 286 м2, размер кухонного пространства 22 м2. Для этого дома мы советуем применить вариант фундамента - монолитная армированная плита с утеплением толщиной 300 мм. Это простой и наиболее экономически целесообразный тип фундамент из всех. По проекту материал несущих стен коттеджа - щелевой кирпич. По вашему решению наши конструкторы поменяют этот проект под другой материал стен, архитекторы актуализируют планировки и рассмотрят любые другие пожелания заказчика.

У вас уже есть проект!

Давайте его обсудим!

Мы составим смету и оптимизируем расходы. Доработаем ваш проект, или создадим новый.
Мы ответим Вам в течение 24 часов
Прикрепить файл

Похожие проекты

Вы недавно смотрели

Дом из несъемной опалубки Лахти двухэтажный 14х14

Получить презентацию проекта

Дом из крупноформатных Лахти 2 двухэтажный 10x12

Получить презентацию проекта
Записаться на встречу в офисе
Прикрепить файл
x
x
x
Позвонить в компанию
или
Заказать обратный звонок
Обратная форма связи
Заявка на бесплатную
видеоконсультацию