Дом комбинированный Ольха-5-1 одноэтажный с мансардой 9х9

Получить презентацию проекта

Лучший дом для вашей семьи

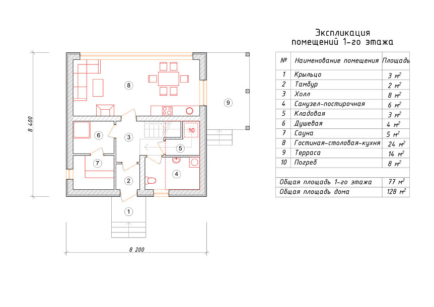
Представляем вашему вниманию практичный коттедж "Ольха-5-1" созданный сотрудниками компании Монолит-домстрой по рекомендациям заказчика. Индивидуальность коттеджа это - практичный погреб из ПВХ для сохранения продовольствия. Погреб закопан под тепловым контуром дома, поэтому в любое время года сохраняет постоянную температуру и влажность воздуха. Погреб устанавливается полностью в комплекте, как готовое изделие, включая лестницу, полки и вытяжку.

Построим вашу мечту

Характеристики проекта

  • Размер дома 9х9 м
  • Число полных этажей 1
  • Высота потолков 2.8 м
  • Мансарда да
  • Цокольный этаж нет
  • Площадь кухни 24 м2
  • Фундамент Плита
  • Стены комбинированный
  • Фасад Облицовочный кирпич
  • Навес для машины нет
  • Гараж нет
  • Гараж на 2 машины нет
  • Веранда да
  • Балкон да
  • Камин да
  • Баня да
  • Бассейн нет
  • Второй свет нет
  • Барбекю нет
  • Стиль дома Модерн Голландский Минимализм Фахверк

Описание дома

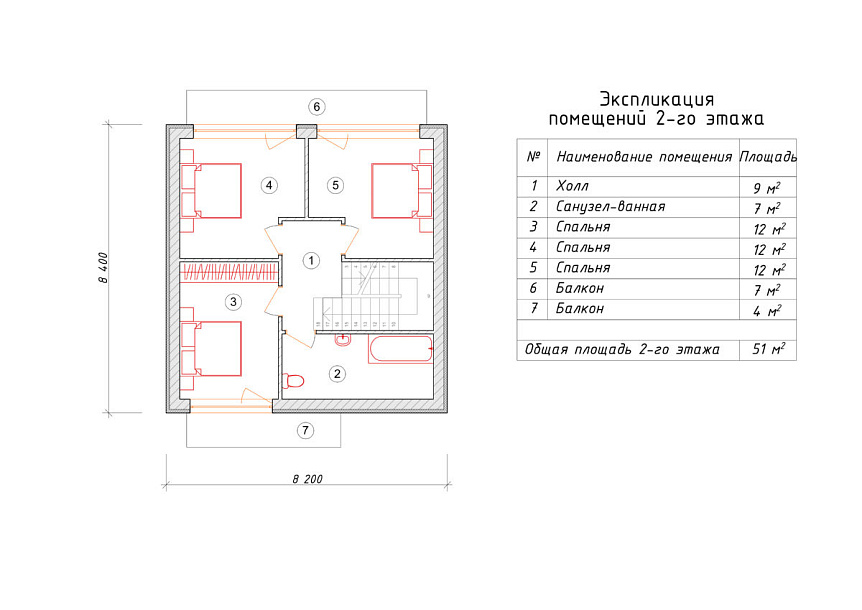
Коттедж в один полный этаж плюс функциональная мансарда. Планировка пространства дома отличается функциональностью и принимает во внимание размещение инженерных систем, вид из окон и расположение сторон света. Планировочные решения здания включают 4 удобных спальни и 2 санузла. Планировочная площадь - 128 м2, размер кухни 24 м2. В данном случае мы советуем применить вариант фундамента - бетонная плита с утеплением толщиной 250 мм. Это надежный и наиболее дешевый тип фундамента из всех. Материал стен этого дома - комбинированные дома. По вашему решению наши конструкторы переделают этот проект под другой материал стен, архитекторы симметрично развернут жилое пространство и учтут любые другие ваши пожелания.

Построено по этому проекту

г. Подольск
г. Подольск
Подробнее
Площадь дома: 106 м2
Стоимость: 4 603 510 ₽

У вас уже есть проект!

Давайте его обсудим!

Мы составим смету и оптимизируем расходы. Доработаем ваш проект, или создадим новый.
Мы ответим Вам в течение 24 часов
Прикрепить файл

Похожие проекты

Дом на монолитном каркасе Чиж-6 одноэтажный с мансардой 9х9

Получить презентацию проекта

Дом из керамического кирпича Ольха-5 одноэтажный с мансардой 9х9

Получить презентацию проекта
Записаться на встречу в офисе
Прикрепить файл
x
x
x
Позвонить в компанию
или
Заказать обратный звонок
Обратная форма связи
Заявка на бесплатную
видеоконсультацию