Дом из газосиликата Монтерей-8 одноэтажный с мансардой 11х11

Получить презентацию проекта

Лучший дом для вашей семьи

Представляем вашему вниманию проект частного дома оптимального ценового диапазона "Монтерей-8" реализованный нашими конструкторами по результатам встречи с заказчиком в нашем офисе. Достоинство коттеджа это - ощущение торжественности в интерьерах дома, которое появляется благодаря панорамному остеклению. Нужно отметить, что вопреки распространенному мнению окна с большой площадью остекления не приводят к повышению цены за строительство дома в целом. Современные конструктивные решения делают возможным увеличение размеров окон, не повышая теплопотери дома.

Построим вашу мечту

Характеристики проекта

  • Размер дома 11х11 м
  • Число полных этажей 1
  • Высота потолков 3 м
  • Мансарда да
  • Цокольный этаж нет
  • Площадь кухни 44 м2
  • Фундамент УШП
  • Стены Газосиликат
  • Фасад Облицовочный кирпич
  • Навес для машины нет
  • Гараж нет
  • Гараж на 2 машины нет
  • Веранда да
  • Балкон да
  • Камин да
  • Баня нет
  • Бассейн нет
  • Второй свет нет
  • Барбекю нет
  • Стиль дома Голландский Английский Европейский

Описание дома

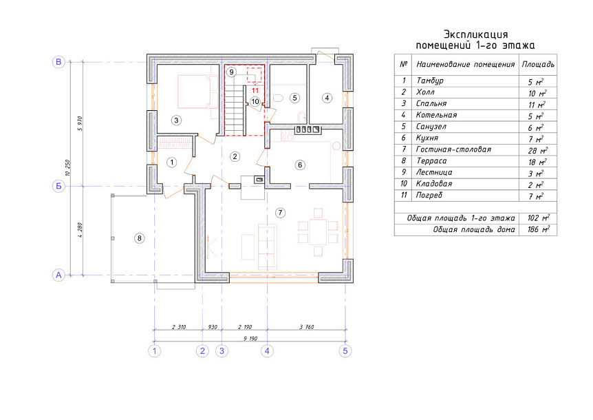
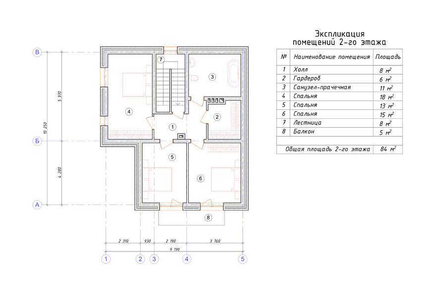
Коттедж одноэтажный плюс функциональный мансардный этаж. Компоновка этажей выделятся функциональностью и учитывает размещение инженерных систем, вид из окон и расположение сторон света. Планировочные планы здания включают 4 удобных спальни и 2 санузла. Планировочная площадь всех помещений дома - 186 м2, размер кухни 44 м2. В этом доме мы рекомендуем применить фундамент - УШП фундамент. Это наиболее теплый фундамент, оптимально подходящий для индивидуального строительства в нашем холодном климате. Материал несущих конструкций - газосиликат. Мы можем изменить данный проект под другой материал, уточнить расположение помещений коттеджа и учесть любые другие ваши пожелания.

У вас уже есть проект!

Давайте его обсудим!

Мы составим смету и оптимизируем расходы. Доработаем ваш проект, или создадим новый.
Мы ответим Вам в течение 24 часов
Прикрепить файл

Похожие проекты

Дом из газобетона Болдино одноэтажный с мансардой 11х11

Получить презентацию проекта

Дом из керамического кирпича Вязники-2 одноэтажный с мансардой 12х12

Получить презентацию проекта
Записаться на встречу в офисе
Прикрепить файл
x
x
x
Позвонить в компанию
или
Заказать обратный звонок
Обратная форма связи
Заявка на бесплатную
видеоконсультацию