Дом на монолитном каркасе Чиж-6 одноэтажный с мансардой 9х9

Получить презентацию проекта

Лучший дом для вашей семьи

Представляем вашему вниманию коттедж в стиле минимализм "Чиж-6" реализованный нашими конструкторами по эскизам заказчика. Конкурентным преимуществом этого дома является панорамные широкие окна, которые создают ощущение торжественности. Считаем необходимым отметить, что вопреки распространенному мнению панорамные окна не приводят к увеличению бюджета на строительство. В настоящее время технологии производства делают возможным увеличение площади окон, не уменьшая энергоэффективность дома.

Построим вашу мечту

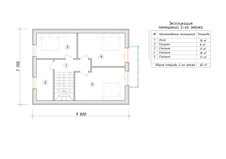
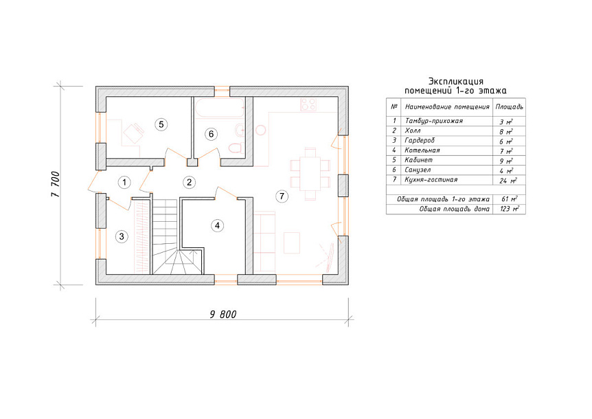
Характеристики проекта

  • Размер дома 9х9 м
  • Число полных этажей 1
  • Высота потолков 2.8 м
  • Мансарда да
  • Цокольный этаж нет
  • Площадь кухни 44 м2
  • Фундамент Свайный
  • Стены Дома на монолитном каркасе
  • Фасад Штукатурка
  • Навес для машины нет
  • Гараж нет
  • Гараж на 2 машины нет
  • Веранда нет
  • Балкон да
  • Камин нет
  • Баня нет
  • Бассейн нет
  • Второй свет нет
  • Барбекю нет
  • Стиль дома Европейский Французский

Описание дома

Коттедж в один полный этаж и теплый мансардный этаж. Планировка жилых помещений отличается функциональностью и принимает во внимание размещение инженерных систем, вид из окон и расположение сторон света. Поэтажные планы коттеджа включают 3 удобных спальни и 1 санузел. Полезная площадь всех помещений здания - 118 м2, площадь кухонного пространства 44 м2. В этом коттедже мы рекомендуем использовать вариант фундамента - плита толщиной 300 мм. Это практичный и самый экономически целесообразный вариант фундамента из всех. Стены по проекту - керамические блоки. По вашему решению мы можем поменять этот проект под другой материал, переработать планировки помещений коттеджа и рассмотреть любые другие ваши требования.

У вас уже есть проект!

Давайте его обсудим!

Мы составим смету и оптимизируем расходы. Доработаем ваш проект, или создадим новый.
Мы ответим Вам в течение 24 часов
Прикрепить файл

Похожие проекты

Дом из газобетона Купавна одноэтажный с мансардой 9х9

Получить презентацию проекта

Дом из щелевого кирпича Крафт-2 одноэтажный с мансардой 10х10

Получить презентацию проекта
Записаться на встречу в офисе
Прикрепить файл
x
x
x
Позвонить в компанию
или
Заказать обратный звонок
Обратная форма связи
Заявка на бесплатную
видеоконсультацию